Hoàn thiện mẫu nhà vườn mái Nhật - Anh Thành, Bắc Giang
Anh Thành là một chủ đầu tư ở Bắc Giang, rất chú trọng đến những giây phút cả nhà sum vầy, vì vậy anh rất muốn có một không gian sinh hoạt chung trên biệt thự 1 tầng đẹp. Với diện tích 170m2, các kiến trúc sư của Kiến Trúc Việt Home nhà đã tạo nên mẫu nhà cấp vườn mái nhật đẹp 4 phòng ngủ thu hút mọi ánh nhìn.
1. Phối cảnh 3D mặt tiền
- Chủ đầu tư: Anh Thành
- Địa điểm xây dựng: Bắc Giang
- Tên công trình: Nhà vườn 1 tầng mái Nhật

Hệ thống mái thái với độ dốc cao, độ đua vừa phải tạo cho mặt tiền độ thoáng, rộng. Phần chân tường được ốp gạch đảm bảo sự bền vững của công trình theo thời gian vừa tăng tính thẩm mỹ.

Mẫu nhà cấp 4 được thiết kế trên mặt tiền rộng vì vậy dù chỉ với 1 tầng thôi nhưng vẫn đáp ứng nhu cầu của mọi người trong gia đình.
Biệt thự 1 tầng đẹp với gam màu trắng trang nhã, tinh khôi kết hợp với màu xanh tinh tế của biệt thự mái Nhật tạo nên một vẻ đẹp thật lịch lãm

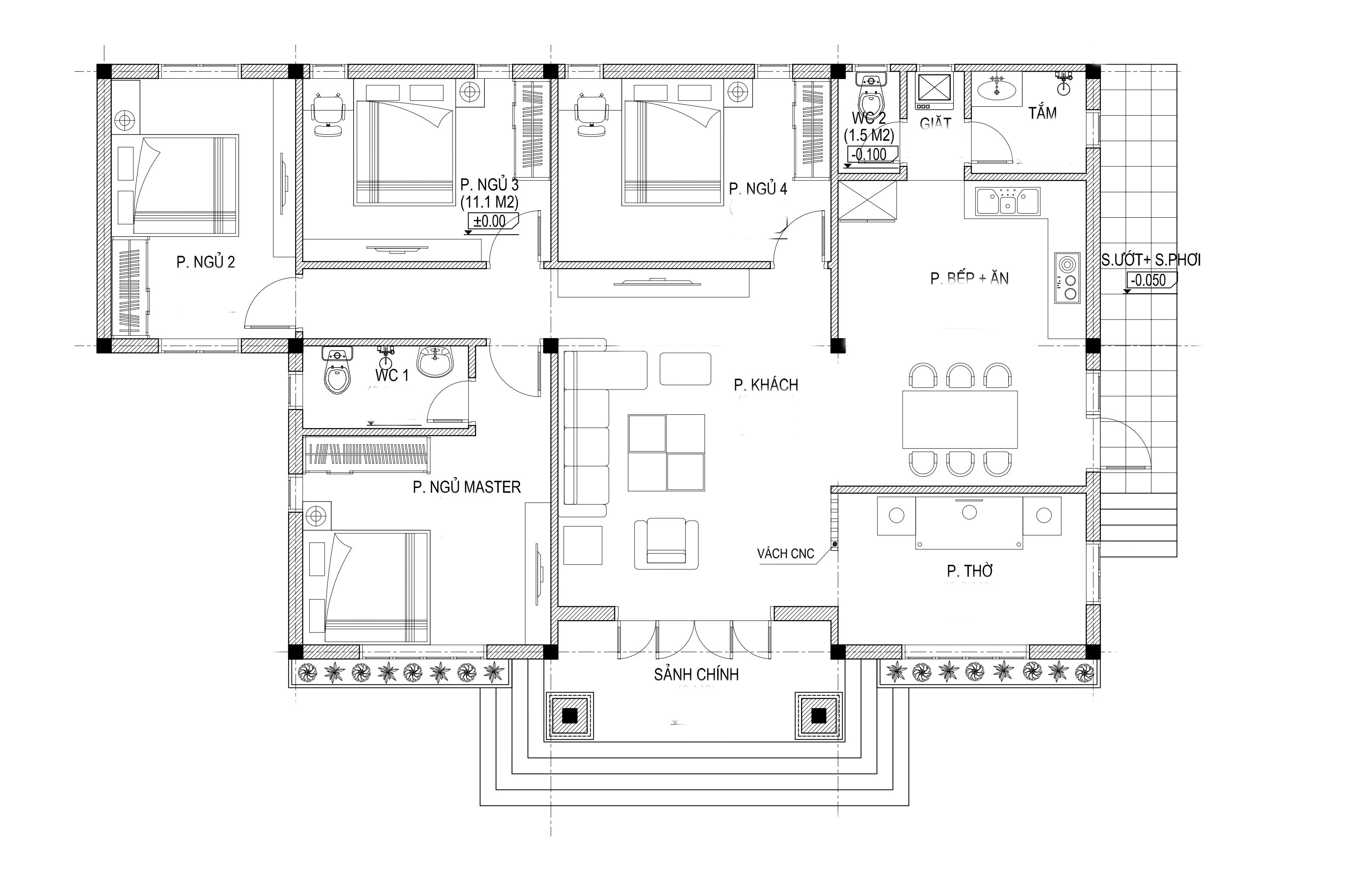
2. Bố trí công năng
Phòng khách + Phòng thờ + Phòng bếp + 4 Phòng ngủ + WC + Sân ướt

3. Hình ảnh hoàn thiện



Các kiến trúc sư tại Việt Home với nhiều kinh nghiệm trong lĩnh vực thiết kế thi công nhà ở với kiến thức chuyên môn và gu thẩm mỹ nghệ thuật cao cam kết sẽ sáng tạo hết mình mang lại không gian sống lý tưởng nhất cho bạn và gia đình.
