Hoàn thiện mẫu nhà phố 3 tầng hiện đại - Chủ đầu tư: Anh Kình, Lào Cai
1. Phối cảnh 3D mặt tiền
Chủ đầu tư: Anh Kình
- Địa điểm xây dựng: Lào Cai
- Công năng sử dụng:
+ Tầng 1: Khu kinh doanh + Phòng khách + Phòng Bếp, ăn + WC
+ Tầng 2: Khu vực SHC + Phòng ngủ khép kín + 2 Phòng ngủ thường + WC
+ Tầng tum: Phòng thờ + Phòng ngủ + WC + Sân phơi+ Sân thượng

Ngôi nhà 3 tầng của gia đình anh Kình với mặt tiền 6m, tận dụng tối đa diện tích xây dựng, nhưng để ngôi nhà thông thoáng và tạo cảm giác thoải mái cho các thành viên trong gia đình nên kiến trúc sư đã dành một phần nhỏ diện tích để làm ban công, nơi để mọi người có thể hóng mát, thư giãn. Thiết kế đơn giản nhưng tạo một dấu ấn riêng cho ngôi nhà.
Ngôi nhà mang phong cách hiện đại, sang trọng. Sự phá cách trong thiết kế để mang lại sự khác biệt trong các thiết kế nhà phố đơn điệu. Kết hợp giữa màu tối và màu sáng một cách hợp lý giúp ngôi nhà trong tràn đầy sức sống và trẻ trung. Sử dụng gạch ốp tường để trang trí khiến ngôi nhà trở nên nổi bật giữa khu phố.
Cửa được làm toàn bộ bằng hệ thống kính cường lực chắc chắn có độ bền cao kết hợp với khung nhôm Xingfa màu đen làm nổi bật lên vẻ đẹp của lối kiến trúc hiện đại. Lan can ban làm bằng kính cường lực giúp tạo cảm giác nới rộng cho không gian, mang lại cho ngôi nhà sự rộng rãi, thoáng mát.
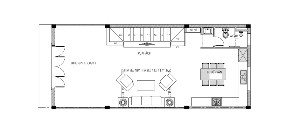
2. Công năng sử dụng
2.1. Tầng 1
Khu kinh doanh + Phòng khách + Phòng Bếp, ăn + WC
.png?199)
2.2. Tầng 2
Khu vực SHC + Phòng ngủ khép kín + 2 Phòng ngủ thường + WC
.png?734)
2.3. Tầng 3
Phòng thờ + Phòng ngủ + WC + Sân phơi+ Sân thượng
.png?291)
