Hoàn thiện mẫu nhà 2 tầng mái nhật - Chủ đầu tư: anh Bắc, Thái Nguyên
1. Phối cảnh 3D mặt tiền
- Chủ đầu tư: Anh Bắc
- Địa điểm xây dựng: Thái Nguyên
- Tên công trình: Biệt thự 2 tầng mái nhật
- Công năng sử dụng:
+ Tầng 1: Phòng khách + bếp + 2 Phòng ngủ
+ Tầng 2: Phòng thờ + 3 Phòng ngủ + WC

Mặt tiền của ngôi biệt thự được thiết kế với hình khối khỏe khoắn, rõ ràng, mang đậm tinh thần hiện đại. Các mảng tường được bố trí theo chiều dọc và ngang một cách logic, tạo ra hiệu ứng thị giác chiều sâu, khiến ngôi nhà trở nên cao ráo và bề thế hơn.
Mẫu nhà mái Nhật 2 tầng theo phong cách đơn giản thường có thiết kế tinh gọn, tối ưu công năng và tiết kiệm chi phí xây dựng. Kiến trúc tập trung vào những đường nét vuông vắn, bố cục hài hòa nhưng không cầu kỳ. Ngôi nhà thường sử dụng các gam màu trung tính như trắng, xám hoặc be để tạo cảm giác thanh lịch, nhẹ nhàng.
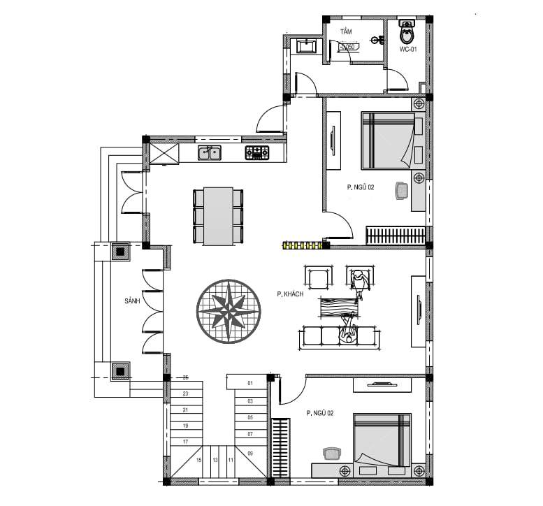
2. Hình ảnh bố trí công năng
2.1. Tầng 1
Phòng khách + bếp + 2 Phòng ngủ
.png?871)
2.2. Tầng 2
Phòng thờ + 3 Phòng ngủ + WC
.png?917)
3. Hình ảnh thi công thực tế
.png?788)
.png?682)
.png?361)
Liên hệ với chúng tôi ngay hôm nay để bắt đầu thiết kế ngôi nhà mơ ước của bạn – nơi phong cách và tiện nghi hòa quyện hoàn hảo.
