Hiện đại và tinh tế cùng mẫu thiết kế nhà phố 4 tầng của chủ đầu tư anh Dũng ở Long Biên, Hà Nội
1. Phối cảnh 3D mặt tiền
Chủ đầu tư: Anh Dũng
Địa điểm xây dựng: Long Biên, Hà Nội
Công năng sử dụng:
+ Tầng 1: Sân trước + Phòng khách, KGĐ + Bếp ăn + WC
+ Tầng 2: 2 Phòng ngủ khép kín + Sân chơi
+ Tầng 3: 2 Phòng ngủ khép kín
+ Tầng 4: Phòng thờ + Sân thượng, Sân phơi + kho

Mặt tiền ngôi nhà 4 tầng hiện đại này được thiết kế vô cùng tinh xảo, thể hiện sự chỉn chu trong từng đường nét và vật liệu sử dụng. Tầng 1 được ốp đá granite màu ghi đậm sang trọng, tạo cảm giác vững chãi như một khối đế kiên cố nâng đỡ toàn bộ công trình. Cửa cuốn lớn được thiết kế tinh gọn, bề mặt đục lỗ lấy sáng tạo nên sự thông thoáng mà vẫn đảm bảo an ninh. Bước lên các tầng trên, gam trắng chủ đạo kết hợp với các mảng tường phẳng sắc nét mang đến vẻ đẹp hiện đại, sạch sẽ và thanh thoát. Điểm nhấn ấn tượng nằm ở hệ cửa kính khung nhôm cao cấp chạy dọc các tầng, vừa mở rộng không gian, vừa tạo nên mặt đứng thông thoáng với ánh sáng tự nhiên tràn ngập.

Ban công mỗi tầng được thiết kế rộng rãi, lan can sắt sơn tĩnh điện đen mảnh mai nhưng chắc chắn, tạo sự tương phản thu hút với tông trắng của ngôi nhà. Các bồn cây được bố trí hợp lý: tầng 2 là mảng xanh lớn tạo cảm giác như một khu vườn mini, tầng 3 là hàng cây nhiệt đới giúp thanh lọc không khí, tầng 4 được trang trí thêm cây tán nhỏ làm mềm không gian. Nhờ đó, mặt tiền vừa có sự sắc sảo của kiến trúc hiện đại, vừa có sự dịu dàng của thiên nhiên.
Tầng 4 là điểm nhấn độc đáo nhất, với mái che kim loại thiết kế nghệ thuật theo hình hoa văn tròn cách điệu, tạo cảm giác nhẹ nhàng nhưng đầy tính thẩm mỹ. Giàn lam phía trước giúp cản nắng nhẹ, đồng thời tạo hiệu ứng đổ bóng đẹp mắt vào ban ngày. Tổng thể mặt tiền là sự giao thoa hoàn hảo giữa hình khối mạnh mẽ, chất liệu cao cấp và mảng xanh tinh tế, tạo nên một công trình vừa sang trọng, vừa thân thiện, nổi bật giữa khu phố.
2. Hình ảnh bố trí công năng
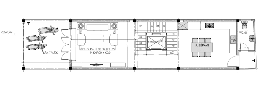
2.1. Tầng 1
+ Tầng 1: Sân trước + Phòng khách, KGĐ + Bếp ăn + WC
.png?295)
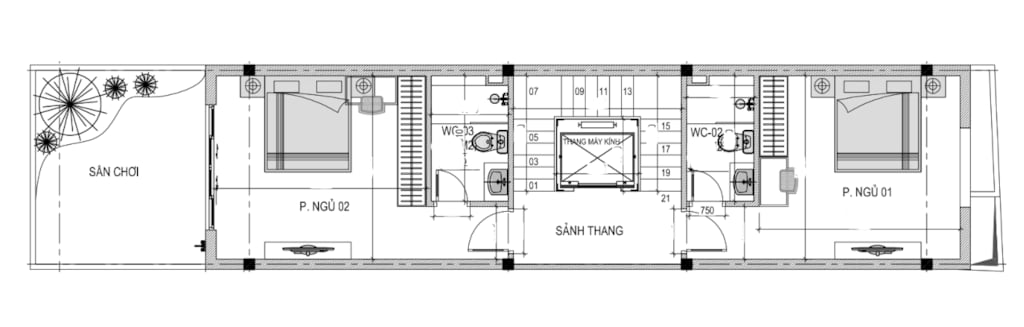
2.2. Tầng 2
+ Tầng 2: 2 Phòng ngủ khép kín + Sân chơi
.png?231)
2.3. Tầng 3
+ Tầng 3: 2 Phòng ngủ khép kín
.png?134)
2.4. Tầng 4
+ Tầng 4: Phòng thờ + Sân thượng, Sân phơi + kho
.png?163)
