Hiện đại và tinh tế cùng mẫu thiết kế nhà phố 4 tầng 1 tum kết hợp kinh doanh của chủ đầu tư anh Tiến ở Hưng Yên
1. Phối cảnh 3D mặt tiền
Chủ đầu tư: Anh Tiến
- Địa điểm xây dựng: Hà Nội
- Công năng sử dụng:
+ Tầng 1: Kinh doanh + khu bếp ăn + 2 WC
+ Tầng 2: Kinh doanh + khu vui chơi trẻ em + 2 WC
+ Tầng 3: Phòng khách + Bếp ăn + 3pn + 2 WC
+ Tầng 4: Phòng thờ + 3pn + WC + Sân phơi
+ Tầng tum: Sân thượng

Mẫu thiết kế nhà phố 4 tầng kết hợp kinh doanh của chủ đầu tư anh Tiến ở Hưng Yên được Kiến Trúc Việt Home thiết kế với công năng sử dụng hài hòa và hợp lý giữa không gian kinh doanh và không gian ở của gia đình. Không chỉ hợp lý về công năng sử dụng, mẫu thiết kế nhà ống hiện đại 4 tầng 1 tum nổi bật với tỷ lệ hình khối chuẩn mực, mạch lạc cũng với những vật liệu trang trí hiện đại như gạch inax, lan can kính.
Ngôi nhà sở hữu mặt tiền ấn tượng với hình khối kiến trúc kiên cố, đường nét thiết kế khoẻ khoắn, thời thượng đặc trưng của phong cách hiện đại. Việc giản lược những chi tiết trang trí rườm rà đã mang đến cho ngôi nhà này một vẻ đẹp vô cùng sang trọng và tinh tế. Kiến trúc sư đã sử dụng gam màu trắng làm màu chủ đạo cho nhà ống 4 tầng 1 tum, việc sử dụng những gam màu tươi sáng dễ dàng tạo hiệu ứng mở rộng không gian cũng như khiến cho tổng thể trở nên hài hoà, thanh lịch giúp tăng giá trị thẩm mỹ.
Diện tường tầng 1 được ốp đá hoa cương vân mây, những đường vân uốn lượn quyến rũ và sang trọng. Các tầng khác sử dụng màu sơn trắng làm nền giúp tôn lên sắc đen của khung nhôm xingfa và lan can sắt nghệ thuật, tạo thành điểm nhấn ấn tượng cho ngoại thất công trình.

Ở mọi góc nhìn, ngôi nhà ống hiện đại 4 tầng 1 tum có tầng hầm vẫn luôn nổi bật và toát lên vẻ đẹp sang trọng và tinh tế bởi bố cục hình khối kết hợp với những vật liệu ốp trang trí mặt tiền và sự phối hợp màu sắc trang nhã và hiện đại. Đặc biệt là việc phân chia mảng khối mặt tiền ngôi nhà ống vô cùng khéo léo và có duyên hay những mảng khối kiến trúc đua ra thụt vào tạo nên nhịp điệu vô cùng có nét cho mặt tiền nhà ống hiện đại.
Hệ thống đèn ngoại thất được bố trí tinh tế tại các vị trí phân tầng, mang lại ánh sáng lung linh vào ban đêm và nâng cao tính thẩm mỹ cho tổng thể kiến trúc. Kết hợp với các yếu tố hiện đại như cách sử dụng hình khối, các vật liệu trang trí, ngôi nhà trở nên nổi bật và thu hút ngay từ cái nhìn đầu tiên
Ngôi nhà với thiết kế hiện đại mang đến vẻ đẹp sang trọng và tinh tế, tạo điểm nhấn nổi bật giữa không gian đô thị. Kiến trúc được tối ưu hóa ngay tầng trệt, tiện lợi cho việc kinh doanh, cùng thang máy tích hợp giúp di chuyển giữa các tầng nhanh chóng và thoải mái.
2. Công năng sử dụng
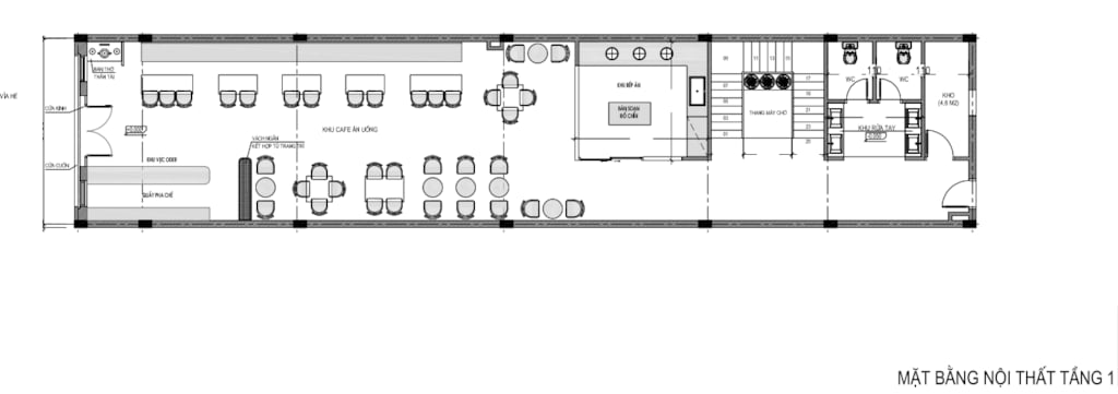
2.1. Tầng 1
+ Tầng 1: Kinh doanh + khu bếp ăn + 2 WC
.png?974)
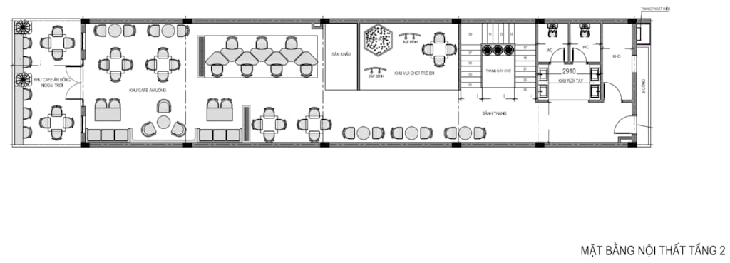
2.2. Tầng 2
+ Tầng 2: Kinh doanh + khu vui chơi trẻ em + 2 WC
.png?183)
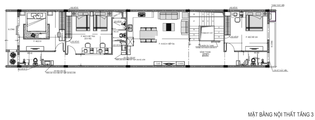
2.3. Tầng 3
+ Tầng 3: Phòng khách + Bếp ăn + 3pn + 2 WC
.png?891)
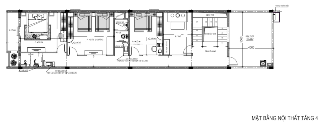
2.4. Tầng 4
+ Tầng 4: Phòng thờ + 3pn + WC + Sân phơi
.png?953)
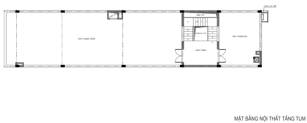
2.5. Tầng tum
+ Tầng tum: Sân thượng

3. Hình ảnh thi công thực tế
.png?848)
.png?835)
.png?728)
.png?293)
.png?814)
.png?910)
.png?805)
.png?558)
