Hiện đại và tinh tế cùng mẫu thiết kế nhà phố 4 tầng 1 tum của chủ đầu tư anh Ngọ ở Hà Nội
1. Phối cảnh 3D mặt tiền
Chủ đầu tư: Anh Ngọ
Địa điểm xây dựng: Sơn Tây, Hà Nội.
Công năng sử dụng:
+ Tầng hầm: Gara + Bếp ăn + WC
+ Tầng 1: Phòng khách + Phòng ngủ + WC
+ Tầng 2: 2 Phòng ngủ + WC
+ Tầng 3: Phòng thờ + phòng ngủ + WC
+ Tầng tum: Sân thượng + Sân phơi

Mặt tiền ngôi nhà hiện lên với vẻ đẹp hiện đại, sắc sảo và đầy tính nghệ thuật, được kiến tạo từ những mảng hình khối vuông vức xếp chồng ngay ngắn nhưng không hề khô cứng. Tổng thể công trình khoác lên mình gam trắng tinh tế làm chủ đạo, tạo cảm giác thanh thoát, trong trẻo và nổi bật dưới nền trời xanh. Tầng 1 gây ấn tượng mạnh với mảng đá xám vân mạnh mang lại cảm giác bề thế và chắc chắn, kết hợp cửa cuốn ghi sáng giúp tăng tính an toàn mà vẫn giữ được sự hài hòa về thẩm mỹ. Khi bước lên tầng 2 và tầng 3, mặt tiền chuyển sang phong cách nhẹ nhàng hơn, với hệ cửa kính rộng cho phép ánh sáng tự nhiên tràn vào bên trong, lan can kính cường lực trong suốt tạo cảm giác mở rộng không gian và đem lại sự sang trọng hiện đại. Những chậu cây xanh được bố trí tinh tế dọc theo các ban công như nét chấm nhẹ giữa mảng màu trắng – xám, khiến mặt tiền trở nên sống động và mềm mại hơn giữa những đường nét thẳng đầy mạnh mẽ.
Lên đến tầng 4, kiến trúc đạt đến độ hoàn thiện nghệ thuật khi phần mái tum được thiết kế với hệ lam kim loại tinh gọn, phía dưới là họa tiết vòng tròn mềm mại mang tính trang trí cao, tạo nét duyên ngầm cho tổng thể công trình. Sắc xanh của những bồn hoa phía trước tầng thượng hòa cùng bầu trời trong, khiến ngôi nhà như hòa mình vào thiên nhiên. Từng tầng, từng chi tiết được liên kết bằng những đường nét khúc chiết, những mảng màu hài hòa, tạo nên một mặt tiền vừa hiện đại, vừa thanh lịch, vừa tràn đầy sức sống – một tác phẩm kiến trúc đô thị ấn tượng và đầy cảm xúc.

2. Hình ảnh bố trí công năng
2.1. Tầng hầm
+ Tầng hầm: Gara + Bếp ăn + WC
.png?192)
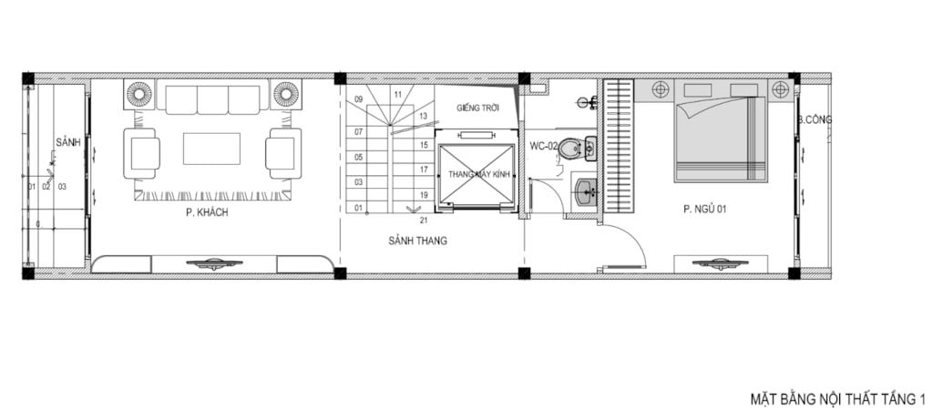
2.2. Tầng 1
+ Tầng 1: Phòng khách + Phòng ngủ + WC
.png?249)
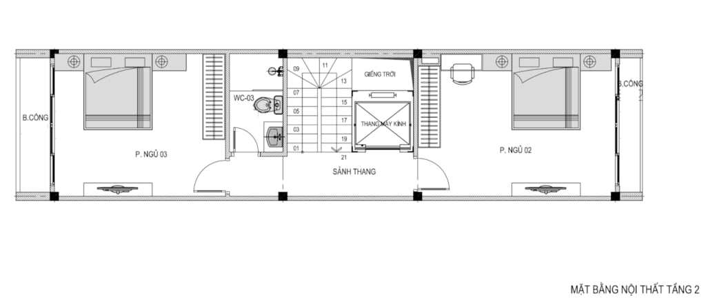
2.3. Tầng 2
+ Tầng 2: 2 Phòng ngủ + WC
.png?120)
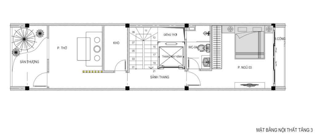
2.4. Tầng 3
+ Tầng 3: Phòng thờ + phòng ngủ + WC
.png?609)
2.5. Tầng 4
+ Tầng tum: Sân thượng + Sân phơi
.png?361)
