Hiện đại và tinh tế cùng mẫu thiết kế nhà phố 2 tầng của chủ đầu tư anh Tùng ở Sơn Tây, Hà Nội
Mẫu Nhà phố 2 tầng mái bằng đang rất được ưa chuộng tại khu vực thành phố với ưu điểm là gọn gàng, không mất quá nhiều diện tích phù hợp với những lô đất có diện tích chiều dài mà hạn chế về chiều rộng thì lựa chọn mẫu thiết kế nhà phố 2 tầng này là hoàn toàn hợp lí. Với những thiết kế hiện đại mái bằng chắc chắn sẽ mang đến một không gian hoàn hảo cho bạn và gia đình của mình. Một ngôi nhà đẹp sẽ cải thiện chất lượng cuộc sống. Mang đến một môi trường sống lí tưởng cho cả gia đình.
1. Phối cảnh 3D mặt tiền
Chủ đầu tư: Anh Tùng
- Địa điểm xây dựng: Hà Nội
- Công năng sử dụng:
+ Tầng 1: Phòng khách + Phòng ngủ + Phòng Bếp + Ăn, 1 WC.
+ Tầng 2: Phòng thờ + 2 phòng ngủ + WC

Ngôi nhà nổi bật mặt tiền hiện đại và thiết kế đơn giản với những đường nét kiến trúc vuông vức, khỏe khoắn. Các hình khối hộp lồng ghép vào nhau một cách tinh tế, vững chãi. Việc kết hợp cùng thiết kế mở, ứng dụng hệ cửa và ban công kính giúp rộng mở tầm nhìn, gần gũi với thiên nhiên bên ngoài. Bên cạnh đó, cây xanh và vườn hoa ở ban công cũng tô điểm thêm cho “bức tranh” mặt tiền sinh động, tươi mới.
Màu trắng được đánh giá là gam màu của vẻ đẹp tinh khôi và êm ái. Bởi vậy, không có gì ngạc nhiên khi gia chủ lựa chọn tone màu này làm chủ đạo, thể hiện rõ tinh thần tối giản và phong cách sống của chủ nhân. Hài hòa cùng các gam màu trung tính của vật dụng nội thất đem đến không gian tiện nghi, sang trọng. Bên cạnh đó hệ thống đèn được bố trí khoa học vừa giải quyết vấn đề chiếu sáng cho ngôi nhà 2 tầng, vừa tạo điểm nhấn thú vị cho không gian.

2. Công năng sử dụng
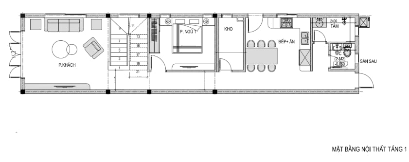
2.1. Tầng 1
+ Tầng 1: Phòng khách + Phòng ngủ + Phòng Bếp + Ăn, 1 WC.
.png?751)
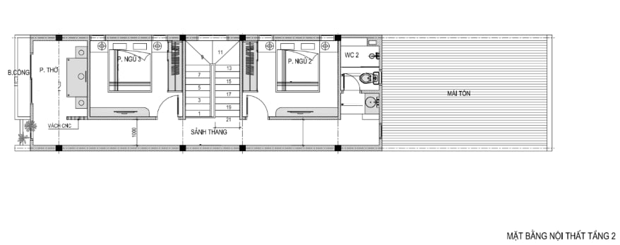
2.2. Tầng 2
+ Tầng 2: Phòng thờ + 2 phòng ngủ + WC
.png?469)
