Hiện đại và tiện nghi cùng mẫu thiết kế 4 tầng của chủ đầu tư anh Quỳnh ở Hà Nội
1. Phối cảnh 3D mặt tiền
Chủ đầu tư: Anh Quỳnh
- Địa điểm xây dựng: Hà Nội
- Công năng sử dụng:
+ Tầng 1: Khách bếp+ Vệ sinh
+ Tầng 2: 2 phòng ngủ khép kín
+ Tầng 3 : 2 phòng ngủ khép kín
+ Tầng 4: Phòng thờ + 1 phòng ngủ khép kín + Sân phơi

So với hình khối kiến trúc cổ điển (chủ yếu là các dạng hình tròn, oval, uốn cong,…) thì hình khối kiến trúc hiện đại đơn giản và mạnh mẽ hơn. Mọi đường nét, chi tiết, hình khối đều hướng đến sự đơn giản đến tinh tế, không sử dụng những chi tiết rườm rà phức tạp. Các khối kiến trúc kết hợp với nhau, cấu thành mang lại sự mạnh mẽ, khỏe khoắn và chắc chắn cho toàn bộ khối kết cấu của ngôi nhà. Những đường thẳng được thể hiện không tuân theo một quy tắc nào và rất phóng khoáng nhưng vẫn hài hòa tạo nên một không gian ngoại thất đẳng cấp, sang trọng.
Ngôi có cấu trúc hình khối được bố trí hợp lý, cân đối sử dụng màu sắc ngoại thất quen thuộc với những gam màu trắng, nâu, đen. Những màu sắc trung tính này khi phối hợp với các màu nhấn mạnh mang đến cho công trình vẻ đẹp tinh tế, sang trọng, hiện đại. Phần mặt tiền ngôi nhà thông thoáng, dịu mát với thiết kế không gian mở giúp biến tấu căn nhà được sinh động hơn, tràn ngập ánh sáng, nắng – gió thay vì tù tùng, bí bách bằng các bức tường cứng nhắc. Bên cạnh đó ngôi nhà còn sử dụng các vật liệu xây dựng hiện đại như kính, thép và gạch block để đảm bảo độ bền và giảm chi phí bảo trì. Các tường và sàn được xây dựng chắc chắn, cách âm tốt, giúp mang lại không gian yên tĩnh, riêng tư cho thành viên trong gia đình. Đồng thời, áp dụng kỹ thuật xây dựng mới với tường gạch rỗng không chỉ giúp giảm nhiệt mà còn tiết kiệm năng lượng, tạo sự thoải mái tối đa cho người sử dụng.
2. Công năng sử dụng
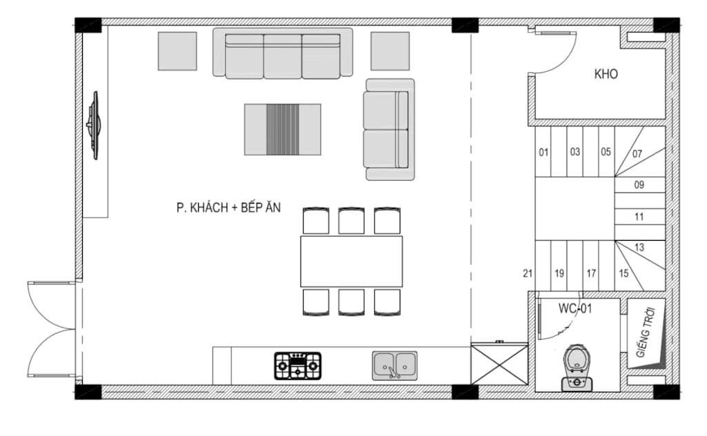
2.1. Tầng 1
+ Tầng 1: Khách bếp+ Vệ sinh
.png?541)
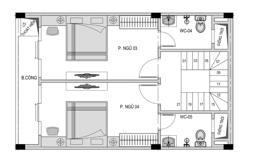
2.2. Tầng 2
+ Tầng 2: 2 phòng ngủ khép kín
.png?219)
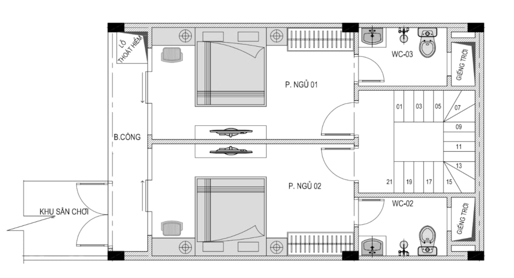
2.3. Tầng 3
+ Tầng 3 : 2 phòng ngủ khép kín
.png?449)
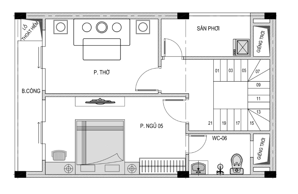
2.4. Tầng 4
+ Tầng 4: Phòng thờ + 1 phòng ngủ khép kín + Sân phơi
.png?560)
