Đẹp lung linh cùng mẫu biệt thự mái Thái 2 tầng của chủ đầu tư Chị Loan tại Ứng Hòa, Hà Nội
1. Phối cảnh 3D mặt tiền
- Chủ đầu tư: Chị Loan
- Địa điểm xây dựng: Ứng Hòa, Hà Nội
- Tên công trình: Biệt thự 2 tầng mái Thái
- Công năng sử dụng:
+ Tầng 1: Phòng khách + Phòng bếp ăn + 2 Phòng ngủ + 1 WC
+ Tầng 2: Phòng Thờ+ Phòng SHC + 3 Phòng ngủ thường + 1 WC

Thiết kế ngoại thất của mỗi ngôi nhà luôn là điểm nhấn quan trọng, thu hút mọi ánh nhìn xung quanh. Đồng thời ngoại thất của mỗi ngôi nhà thể hiện đẳng cấp và phong cách của gia chủ. Đến với mẫu thiết kế nhà mái thái 2 tầng, quý vị có thể thấy căn nhà có ngoại thất thu hút với sắc trắng nổi bật, tạo ấn tượng thị giác mạnh mẽ. Nổi bật trên nền trắng của căn nhà là hệ mái Thái xanh đen với màu sắc đẹp mắt, độ bền cao, có công năng tốt trong việc chống nóng, giúp bảo vệ phần mái của căn nhà.
Mặt tiền của căn nhà được thiết kế với bố cục cân đối, hài hòa và những đường nét khỏe khoắn, ngoại thất của căn nhà hiện lên với sự xếp nối của các hình khối vuông vững chắc kết hợp hài hòa với các chi tiết đường cong mềm mại mang đến cho ngôi biệt thự mái thái vẻ đẹp thanh thoát, lôi cuốn đầy hấp dẫn, đồng thời thể hiện gu thẩm mỹ tinh tế của chủ đầu tư. Ban công tầng 2 của căn biệt thự đua ra nhẹ nhàng, hài hòa với tổng thể kiến trúc ngoại thất căn biệt thự.
Hệ thống cửa sổ kính được bố trí ở các vị trí giúp tận dụng tối đa không gian sống để lấy ánh sáng và gió tự nhiên từ ngoài vào. Hệ thống cửa chính được sử dụng chính bằng gỗ được tạo điểm nhấn bằng những ô kính nhỏ, Hệ thống lam trang trí ban công được sử dụng chất liệu nhôm đúc hình bán nguyệt điệu đà và uốn lượn giúp ngôi nhà thêm phần sang trọng nhưng lại không kém phần tinh tế.
2. Bố trí công năng
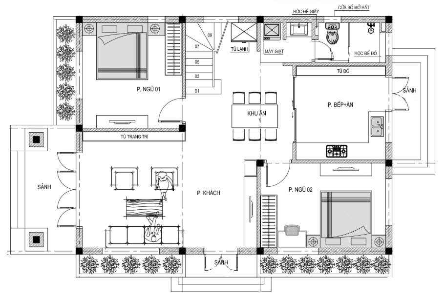
2.1. Tầng 1
+ Tầng 1: Phòng khách + Phòng bếp ăn + 2 Phòng ngủ + 1 WC
.png?919)
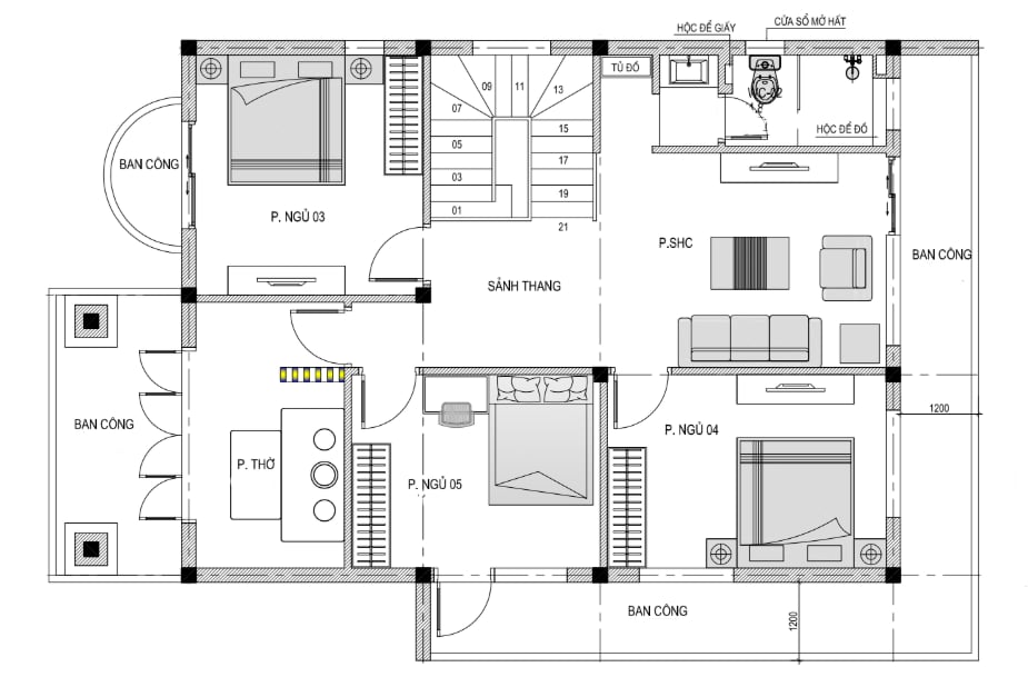
2.2. Tầng 2
+ Tầng 2: Phòng Thờ+ Phòng SHC + 3 Phòng ngủ thường + 1 WC
.png?857)
