Đẹp hiện đại cùng mẫu nhà phố 3 tầng của chủ đầu tư anh Thụ tại Hà Nam
1. Phối cảnh 3D mặt tiền
Chủ đầu tư: Anh Thụ
- Địa điểm xây dựng: Hà Nam
- Công năng sử dụng:
+ Tầng 1: Phòng khách + Phòng Bếp, ăn + WC
+ Tầng 2: 2 Phòng ngủ khép kín
+ Tầng tum: Phòng thờ + Phòng ngủ + WC + Sân phơi+ Sân thượng

Ngôi nhà 3 tầng của gia đình anh Thụ tận dụng tối đa diện tích xây dựng, nhưng để ngôi nhà thông thoáng và tạo cảm giác thoải mái cho các thành viên trong gia đình nên kiến trúc sư đã dành một phần nhỏ diện tích để làm ban công, nơi để mọi người có thể hóng mát, thư giãn. Thiết kế đơn giản nhưng tạo một dấu ấn riêng cho ngôi nhà.
Ngôi nhà mang phong cách hiện đại, sang trọng. Sự phá cách trong thiết kế để mang lại sự khác biệt trong các thiết kế nhà phố đơn điệu. Kết hợp giữa màu tối và màu sáng một cách hợp lý giúp ngôi nhà trong tràn đầy sức sống và trẻ trung. Sử dụng gạch ốp tường để trang trí khiến ngôi nhà trở nên nổi bật giữa khu phố

Với mặt tiền đơn giản, nhưng đẹp và tiết kiệm chi phí , ngôi nhà vẫn có điểm nhấn nổi bật. Toàn bộ cửa sổ, cửa chính và lan can đều được làm từ chất liệu nhôm kinh giúp mang lại nét đẹp hiện đại, sang trọng. Cửa kính cũng giúp ngôi nhà đón được nhiều anh sáng giúp không gian bên trong trở nên thoáng đãng hơn. Bên cạnh đó, với mong muốn đem đến các “không gian xanh” nhằm đảm bảo sức khỏe cũng như làm điểm nhấn cho căn nhà. Các kiến trúc sư ưu tiên sử dụng nhiều cây xanh cho các tầng
Màu sắc ngôi nhà được thiết kế phù hợp theo phong thủy và sở thích của gia chủ, sự kết hợp màu sắc hài hòa giữa chất liệu gỗ nổi bật trên nền sơn trắng sang trọng đã tạo nên diện mạo xinh đẹp cho ngôi nhà.
Cửa được làm toàn bộ bằng hệ thống kính cường lực chắc chắn có độ bền cao kết hợp với khung nhôm Xingfa màu đen làm nổi bật lên vẻ đẹp của lối kiến trúc hiện đại. Lan can ban làm bằng kính cường lực giúp tạo cảm giác nới rộng cho không gian, mang lại cho ngôi nhà sự rộng rãi, thoáng mát. Ánh sáng là yếu tố vô cùng quan trọng trong thiết kế nhà phố do đó việc sử dụng cửa kính sẽ giúp căn nhà được tràn ngập ánh nắng thiên nhiên, loại bỏ ẩm mốc và nhiều vi khuẩn có hại. Bên cạnh đó, việc sử dụng gam màu trắng tinh tế làm chủ đạo, điểm thêm màu xám và cam gỗ tươi tắn của thanh ốp trang trí càng làm cho ngôi nhà trở nên sang trọng và lung linh hơn.
2. Công năng sử dụng
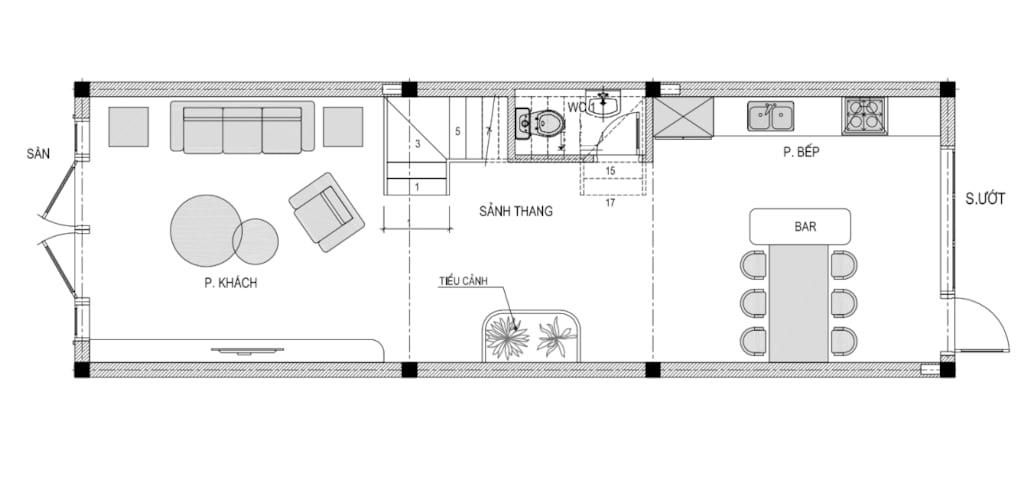
2.1. Tầng 1
+ Tầng 1: Phòng khách + Phòng Bếp, ăn + WC
.png?488)
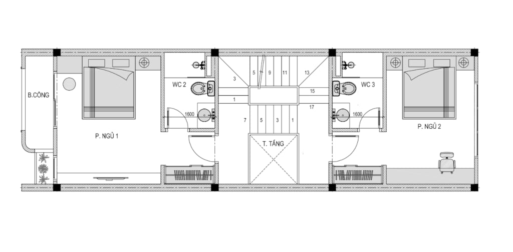
2.2. Tầng 2
+ Tầng 2: 2 Phòng ngủ khép kín
.png?861)
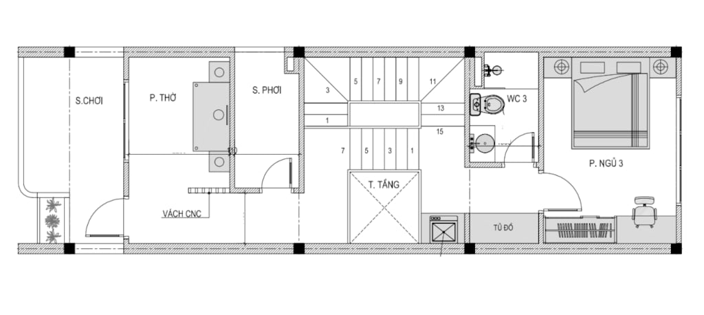
2.3. Tầng 3
+ Tầng tum: Phòng thờ + Phòng ngủ + WC + Sân phơi+ Sân thượng
.png?169)
