Đẹp hiện đại cùng mẫu nhà phố 2 tầng 1 tum của chủ đầu tư anh Quang tại Sơn La
Công trình nhà 2 tầng 1 tum tại Sơn La do Việt Home thiết kế với phong cách hiện đại – sáng – xanh – thoáng. Với nhu cầu sinh hoạt của gia đình, ngôi nhà thiết kế 2 tầng 1 tum tiện nghi và sáng tạo đã nhận được sự hài lòng của chủ đầu tư ngay từ bản thiết kế đầu tiên. Công trình mang trong mình nét kiến trúc hiện đại với đường nét thiết kế vững chắc, thể hiện sự sáng tạo và sự vững chãi của tổ ấm gia đình. Việc bố trí phi đối xứng trong cấu trúc nhà giúp các công năng bên trong được sắp xếp linh hoạt và hợp lý.
1. Phối cảnh 3D mặt tiền
Chủ đầu tư: Anh Quang
- Địa điểm xây dựng: Sơn La
- Công năng sử dụng:
+ Tầng 1: Phòng khách , Phòng Bếp + Ăn + 1 Phòng ngủ + WC
+ Tầng 2: Phòng ngủ Master + 2 Phòng ngủ thường + 1 WC.
+ Tầng tum: Phòng thờ + Sân chơi, BBQ+ Sân phơi

Ngôi nhà của gia đình anh Quang mang phong cách hiện đại đã tạo nên một tổ ấm độc đáo và sang trọng. Thiết kế mặt tiền bắt mắt với những đường nét kiến trúc gãy gọn, tạo nên một diện mạo mới lạ cho ngôi nhà. Sự kết hợp tinh tế giữa các vật liệu như đá, gỗ và kính đã tạo ra một diện mạo độc đáo và ấn tượng cho ngôi nhà. Những đường nét kiến trúc cong cong mềm mại càng tôn thêm vẻ đẹp uyển chuyển cho mặt tiền.
Ngôi nhà gây ấn tượng bởi gam màu trắng và xám nhẹ nhàng, dịu mát, tạo ra một không gian sáng sủa và sạch sẽ. Sự kết hợp tinh tế của các màu sắc trung tính và màu gỗ trầm ấm giúp tạo nên không gian rộng rãi và ấm cúng. Mỗi phòng đều được trang bị nội thất tiện nghi và có cửa sổ để lấy ánh sáng tự nhiên và thông gió.

Một ngôi nhà cần sự rộng thoáng, mang đến cảm giác thoải mái cho chủ sở hữu. Phong cách hiện đại luôn yêu cầu về việc đơn giản hóa các đường nét. Từ đường nét kiến trúc đến đường nét của đồ dùng nội thất đều phải đảm bảo sự tối giản. Không cầu kỳ, không rườm rà các chi tiết trang trí mà sử dụng đa số không gian âm chính là đặc điểm của kiểu thiết kế này. Nhờ đó, bố cục trong nhà hiện đại luôn rõ ràng, dứt khoát. Khi mọi thứ đều “mạch lạc” sẽ giúp thị giác chúng ta được định tốt hơn, mang đến cảm giác dễ chịu. Vì vậy, gần như các mẫu nhà phố đều lựa chọn phong cách thiết kế hiện đại.
2. Công năng sử dụng
2.1. Tầng 1
+ Tầng 1: Phòng khách , Phòng Bếp + Ăn + 1 Phòng ngủ + WC

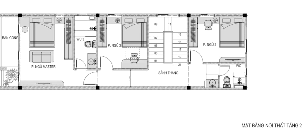
2.2. Tầng 2
+ Tầng 2: Phòng ngủ Master + 2 Phòng ngủ thường + 1 WC.
.png?664)

2.3. Tầng 3
+ Tầng tum: Phòng thờ + Sân chơi, BBQ+ Sân phơi

