Đẳng Cấp Thời Thượng Cùng Nhà Tân Cổ Điển 4 Tầng 1 Tum - CĐT: Mr Phương - Hải Phòng
1. Phối cảnh 3D mặt tiền
Chủ đầu tư: Anh Phương
Địa điểm xây dựng: Hải Phòng
Công năng sử dụng:
+ Tầng 1: Phòng khách + Bếp ăn + 1 WC
+ Tầng 2: 2 Phòng ngủ Master
+ Tầng 3,4 : 2 Phòng ngủ Master
+ Tầng tum: Phòng thờ + Sân phơi + kho

Mặt tiền công trình hiện lên như một bức tranh kiến trúc tân cổ điển hoàn mỹ, nơi từng đường nét đều được trau chuốt kỹ lưỡng nhằm tôn vinh vẻ đẹp sang trọng và đẳng cấp vượt thời gian. Tổng thể ngôi nhà sử dụng gam trắng chủ đạo, không chỉ tạo cảm giác thanh lịch, tinh khiết mà còn làm nổi bật hệ phào chỉ, gờ tường và các chi tiết trang trí đặc trưng của phong cách tân cổ điển. Trục mặt đứng được tổ chức rõ ràng, mạch lạc với sự đối xứng cân bằng, mang lại cảm giác vững chãi và uy nghi cho toàn bộ công trình. Điểm nhấn nổi bật nhất là hệ cửa kính cao kịch trần dạng vòm cong mềm mại, kéo dài từ tầng thấp lên các tầng trên, vừa mở rộng tầm nhìn, đón ánh sáng tự nhiên tối đa, vừa tạo hiệu ứng thị giác giúp công trình trở nên cao ráo, thanh thoát hơn.
Các tầng ban công được thiết kế đua nhẹ ra ngoài, tạo chiều sâu cho mặt tiền, kết hợp lan can sắt mỹ thuật sơn đen với hoa văn uốn lượn tinh xảo, vừa đảm bảo an toàn vừa tăng tính nghệ thuật. Phía trước mỗi ban công là bồn cây xanh và dây leo rủ xuống tự nhiên, mang đến sự mềm mại, phá vỡ cảm giác khô cứng của vật liệu xây dựng, đồng thời tạo nên lớp “áo xanh” giúp điều hòa vi khí hậu cho ngôi nhà. Hệ đèn tường cổ điển được bố trí đều đặn hai bên cửa và cột, không chỉ đảm bảo chiếu sáng mà còn làm nổi bật các chi tiết kiến trúc khi màn đêm buông xuống, khiến mặt tiền trở nên lung linh và đầy cuốn hút.

Tầng trệt được xử lý vô cùng ấn tượng với cửa chính bằng gỗ tự nhiên kích thước lớn, chạm khắc hoa văn tinh xảo, kết hợp khung vòm mềm mại và bậc tam cấp ốp đá sang trọng, tạo nên cảm giác bề thế, trang nghiêm ngay từ lối vào. Phần mái và sân thượng phía trên được thiết kế gọn gàng, tinh giản nhưng vẫn có điểm nhấn bằng mảng xanh và hệ lan can, giúp tổng thể công trình không bị nặng nề. Tất cả các yếu tố từ màu sắc, vật liệu, hình khối đến ánh sáng và cây xanh đều được phối hợp hài hòa, tạo nên một mặt tiền nhà phố tân cổ điển vừa sang trọng, vừa tinh tế, thể hiện rõ gu thẩm mỹ cao cấp và vị thế của gia chủ.
2. Hình ảnh bố trí công năng
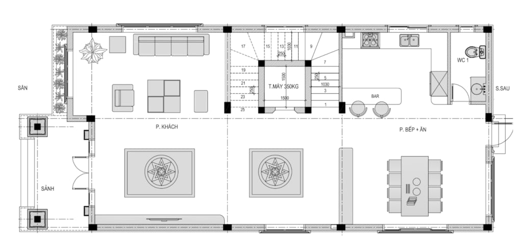
2.1. Tầng 1
+ Tầng 1: Phòng khách + Bếp ăn + 1 WC
.png?284)
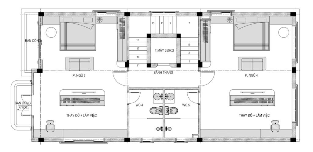
2.2. Tầng 2
+ Tầng 2: 2 Phòng ngủ Master
.png?482)
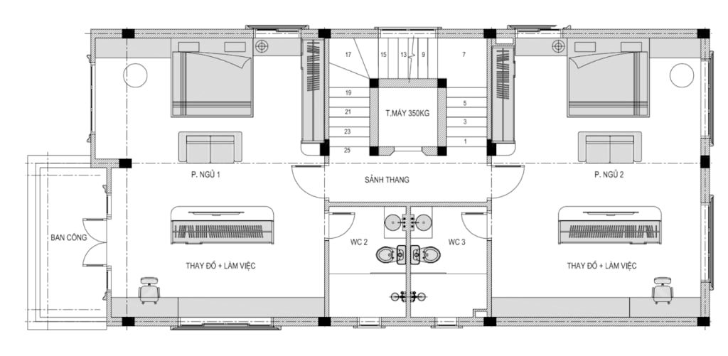
2.3. Tầng 3
+ Tầng 3,4 : 2 Phòng ngủ Master

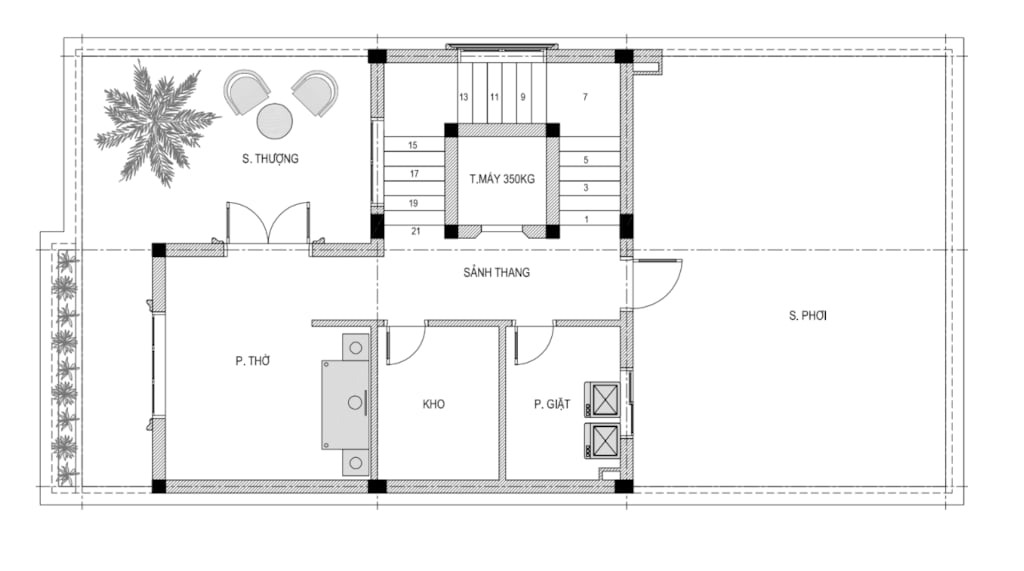
2.4. Tầng Tum
+ Tầng tum: Phòng thờ + Sân phơi + kho
.png?751)
