Đẳng cấp mẫu nhà phố 4 tầng cực hút mắt của chủ đầu tư anh Thiên ở Hà Nội
Đối với mặt tiền kiến trúc, ngôi nhà thiết kế kiểu hiện đại, hài hòa tổng thể và tạo không gian mở chính là mục tiêu hàng đầu của chủ đầu tư. Không trang trí quá rườm, ưu tiên không gian sống xanh, mát mẻ và kiên cố. Tổng thể thiết kế hài hòa, trẻ trung và phóng khoáng, sử dụng cửa kính trong suốt và chậu cây xanh để tạo sự gần gũi thiên nhiên cho căn nhà phố. Các đường nét kiến trúc được tối giản; đề cao việc tối ưu không gian cho sử dụng sinh hoạt và ở của gia chủ. Màu sắc thường sử dụng các tone màu sáng hoặc kết hợp giữa 2 gam màu tương phản trắng và xám.
1. Phối cảnh 3D mặt tiền
- Chủ đầu tư: Anh Thiên
- Kích Thước: 4.2mx11.5m
- Địa điểm xây dựng: Hà Nội
- Công năng sử dụng:
+ Tầng 1: Sân + Phòng Khách + Bếp ăn + WC
+ Tầng 2, 3: 2 Phòng ngủ + WC
+ Tầng 4: Phòng Thờ + Kho + Sân phơi + Sân Thượng

Ngôi nhà gia đình anh Thiên điển hình cho sự kết hợp giữa phong cách tối giản và hiện đại. Ngôi nhà sử dụng các gam màu trung tính giúp tạo cảm giác mở rộng không gian. Với đặc điểm nhà phố thì quỹ đất rất hạn chế. Mỗi tầng được trang bị cửa kính lớn giúp lấy ánh sáng tự nhiên tốt hơn. Những ban công nhỏ được bố trí một cách đầy nghệ thuật ; làm nơi để chậu cây xanh và thư giãn tốt. Không gian đầy đủ tiện nghi như: phòng khách; phòng bếp ; phòng thờ; sân phơi; gara; nhiều phòng ngủ và các tiện ích khác. Có thể phục vụ nhu cầu sinh hoạt cho từng thành viên trong gia đình.

Phong cách thiết kế tối giản với các đường nét sạch sẽ, không có nhiều chi tiết phức tạp. Các chi tiết nội thất đơn giản, tinh tế, nhưng đầy đủ tiện nghi. Vật liệu hiện đại như kính, gỗ tự nhiên, bê tông, kim loại sẽ là các lựa chọn phổ biến cho ngôi nhà phố này. Tông màu chủ đạo là trắng, xám và các màu trung tính, kết hợp với màu sắc tự nhiên của gỗ, tạo không gian sang trọng và gần gũi.
2. Công năng sử dụng
2.1. Tầng 1
+ Tầng 1: Sân + Phòng Khách + Bếp ăn + WC

2.2. Tầng 2,3
+ Tầng 2, 3: 2 Phòng ngủ + WC

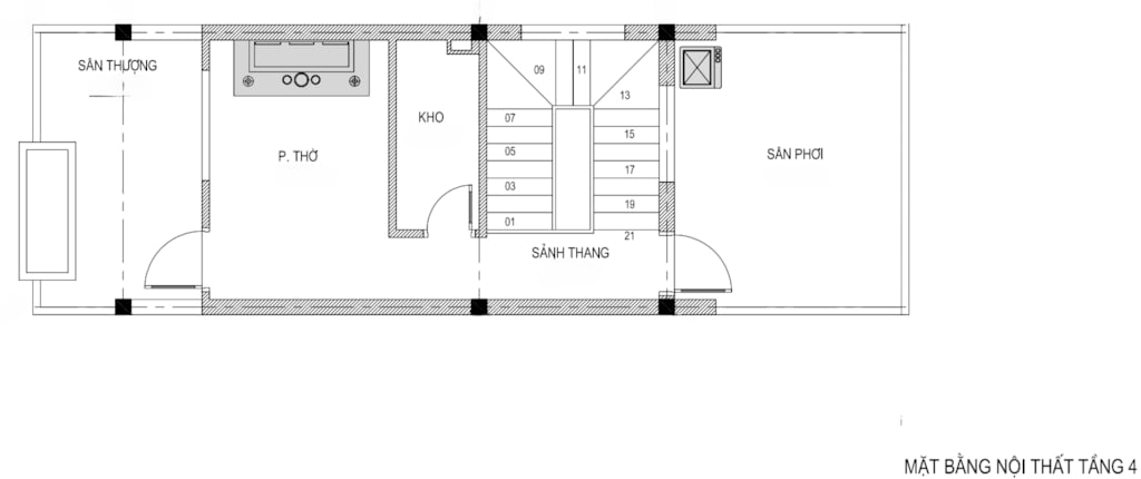
2.3. Tầng 4
+ Tầng 4: Phòng Thờ + Kho + Sân phơi + Sân Thượng
.png?368)
Liên hệ với chúng tôi ngay hôm nay để bắt đầu thiết kế ngôi nhà mơ ước của bạn – nơi phong cách và tiện nghi hòa quyện hoàn hảo!
