Đẳng cấp mẫu nhà phố 3 tầng tân cổ điển cực hút mắt của chủ đầu tư anh Tôn ở Quảng Ninh
Nhà phố tân cổ điển 3 tầng là kiểu kiến trúc kết hợp giữa vẻ đẹp cổ điển với các yếu tố hiện đại, tạo nên một không gian sống sang trọng và đẳng cấp. Kiến trúc tân cổ điển chú trọng đến sự cân đối, đối xứng, và sự lộng lẫy nhưng vẫn giữ được sự thanh thoát và tinh tế., ngôi nhà phố 3 tầng nổi bật trên nền trắng trang nhã, thể hiện rõ nét những chi tiết hoa văn - phào chỉ một cách tinh tế. Bên cạnh đó: mẫu thiết kế nhà còn mang vẻ đẹp hoài cổ, kết hợp giữa kiến trúc cổ và nét trẻ trung, tươi mới của kiến trúc hiện đại, cho ngôi nhà mang nét đẹp truyền thống mà tiện nghi, bền vững theo thời gian .
1. Phối cảnh 3D mặt tiền
Chủ đầu tư: Anh Tôn
- Địa điểm xây dựng: Quảng Ninh
- Công năng sử dụng:
+ Tầng 1: Gara, Kinh Doanh , Phòng khách, Phòng Bếp + Ăn, WC.
+ Tầng 2: Phòng ngủ Master, 2 Phòng ngủ thường + WC
+ Tầng 3: Phòng Thờ, Phòng ngủ , WC , Sân phơi.

Nhà ống tân cổ điển 3 tầng mang đến vẻ đẹp sang trọng, quý phái, thể hiện sự đẳng cấp của gia chủ. Ngôi nhà nổi bật với các đường nét hoa văn uốn lượn, tỉ mỉ được chạm khắc trên cột, phào chỉ, ban công, tạo nên vẻ đẹp tinh tế và sang trọng. Ngôi nhà của gia đình anh Tôn là một thiết kế nhà ống khá phổ biến, phù hợp với những lô đất có diện tích vừa phải. Với mặt tiền 5m, ngôi nhà vẫn đảm bảo được sự sang trọng và tinh tế của phong cách tân cổ điển. Ngoại thất của mẫu nhà này được nhấn mạnh bởi hệ thống cột trụ, phào chỉ, hoa văn trang trí tỉ mỉ, mang đến vẻ đẹp cổ điển, quý phái. Nội thất bên trong được bố trí khoa học, tận dụng tối đa không gian, kết hợp hài hòa giữa nét đẹp truyền thống và hiện đại, tạo nên không gian sống thoải mái và tiện nghi cho gia đình.
.jpg?887)
Phong thủy đóng vai trò quan trọng trong việc xây dựng nhà cửa. Khi thiết kế nhà ống tân cổ điển 3 tầng, KTS Việt Home chú ý đến hướng nhà, màu sắc và vị trí đặt các đồ vật trong nhà để mang lại may mắn và tài lộc cho gia chủ. Với vẻ đẹp tinh tế, sang trọng và đầy chất cổ điển, nhà ống tân cổ điển 3 tầng luôn là lựa chọn hàng đầu của những gia đình yêu thích sự hoàn hảo. Bằng sự kết hợp hài hòa giữa nét đẹp truyền thống và tiện nghi hiện đại, ngôi nhà không chỉ là nơi để ở mà còn là biểu tượng của sự thành công và đẳng cấp của gia chủ
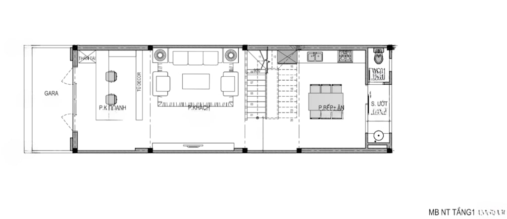
2. Công năng sử dụng
2.1. Tầng 1
+ Tầng 1: Gara, Kinh Doanh , Phòng khách, Phòng Bếp + Ăn, WC.
.png?840)

2.2. Tầng 2
+ Tầng 2: Phòng ngủ Master, 2 Phòng ngủ thường + WC

2.3. Tầng 3
+ Tầng 3: Phòng Thờ, Phòng ngủ , WC , Sân phơi.

Nếu các bác thích mẫu nhà phố như bên em vừa giới thiệu thì hãy nhắn tin hoặc gọi điện thoại trực tiếp cho Việt Home để được tư vấn nhé!
