Đẳng cấp mẫu nhà phố 2 tầng 1 tum hiện đại cực hút mắt của chủ đầu tư anh Thìn ở Hà Nội
Nhà phố 2 tầng 1 tum không chỉ nổi bật bởi sự gọn gàng, tinh tế trong thiết kế mà còn bởi tính ứng dụng cao. Kiến trúc này có nhiều đặc điểm nổi bật, giúp loại hình nhà này trở thành lựa chọn phổ biến cho các gia đình sống ở khu đô thị. Ngôi nhà tận dụng tối đa không gian trên diện tích đất hạn chế. Tầng tum thường được sử dụng như một không gian linh hoạt, có thể là phòng thờ, phòng ngủ phụ, phòng làm việc, hoặc sân vườn trên cao.
1. Phối cảnh 3D mặt tiền
- Chủ đầu tư: Anh Thìn
- Địa điểm xây dựng: Hà Nội
- Công năng sử dụng:
+ Tầng 1: Phòng khách + Bếp ăn + Phòng Ngủ + Tắm , WC
+ Tầng 2: Phòng Thờ + Phòng ngủ khép kín + 2 Phòng Ngủ + WC
+ Tầng tum: Sân Thượng + Sân phơi

Mặt tiền của nhà phố sử dụng các tông màu trung tính như trắng và xám, ghi kết hợp với vật liệu như bê tông, kính, gỗ, và thép không gỉ để tạo nên một không gian mạnh mẽ nhưng thanh thoát. Kiểu dáng thiết kế đơn giản, đường nét thẳng và hình khối rõ ràng. Cửa chính và các cửa sổ sử dụng kính lớn, không chỉ giúp không gian trong nhà thông thoáng mà còn tạo vẻ đẹp hiện đại, hòa hợp với ánh sáng tự nhiên. Ban công được thiết kế rộng rãi, có thể trồng cây cảnh hoặc bố trí một khu vực thư giãn ngoài trời. Đây là một điểm nhấn cho mặt tiền, mang đến sự gần gũi với thiên nhiên. Mặt tiền nhà sử dụng kính cường lực lớn giúp tận dụng ánh sáng tự nhiên, tạo cảm giác thoáng đãng. Phần tum thường được thiết kế làm sân thượng để trồng cây xanh và làm khu vực thư giãn.

2. Công năng sử dụng
2.1 Mặt bằng tầng 1
+ Tầng 1: Phòng khách + Bếp ăn + Phòng Ngủ + Tắm , WC
.png?876)
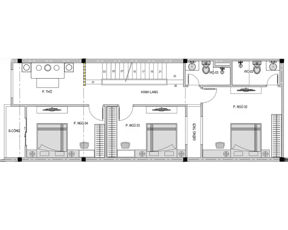
2.2 Mặt bằng tầng 2
+ Tầng 2: Phòng Thờ + Phòng ngủ khép kín + 2 Phòng Ngủ + WC
.png?744)
2.3 Mặt bằng tầng tum
+ Tầng tum: Sân Thượng + Sân phơi
.png?970)
Liên hệ với chúng tôi ngay hôm nay để bắt đầu thiết kế ngôi nhà mơ ước của bạn – nơi phong cách và tiện nghi hòa quyện hoàn hảo!
