Đẳng cấp mẫu nhà mái Nhật 2 tầng của chủ đầu tư anh Hưởng tại Hưng Yên
1. Phối cảnh 3D mặt tiền
- Chủ đầu tư: Anh Hưởng
- Địa điểm xây dựng: Hưng Yên
- Tên công trình: Biệt thự 2 tầng mái nhật
- Công năng sử dụng:
+ Tầng 1: Phòng thờ + Phòng khách + Phòng bếp ăn + 1 Phòng ngủ + 1 WC
+ Tầng 2: Phòng ngủ SHC + 3 Phòng ngủ + 1 WC

Biệt thự 2 tầng mái Nhật phong cách hiện đại bố cục hình khối đơn giản nhưng vô cùng sang trọng, độc đáo. Yếu tố phong thủy cũng được KTS Việt Home đặc biệt chú trọng để xây dựng biệt thự chuẩn hướng nhà, hướng cửa chính và cách bố trí các phòng công năng cũng được các chuyên gia phong thủy tư vấn để phù hợp với mệnh tuổi của gia chủ, đem đến sự bình an, may mắn và tài lộc cho cả gia đình. Công trình không chỉ thỏa mãn tiêu chí thẩm mỹ bên ngoài mà còn giải quyết gần như hoàn hảo yêu cầu phức tạp từ chủ đầu tư. Không cần sử dụng quá nhiều chi tiết phức tạp mà vẫn mang lại vẻ đẹp sang trọng, ấn tượng đặc biệt
Thiết kế biệt thự hiện đại 2 tầng đẹp mang trong mình sự khỏe khoắn, phóng khoáng được thể hiện rõ ràng qua từng hình khối, mảng miếng, đường nét thiết kế. Những họa tiết trang trí đều hướng tới sự đơn giản, ưu tiên sử dụng những gam màu trung tính đang rất thịnh hành trong cuộc sống hiện đại ngày nay.
Hơn nữa, biệt thự hiện đại ngày nay rất chú trọng việc thiết kế mở để mọi không gian được thông thoáng. Với công trình này, NewLine hoàn toàn đáp ứng những yêu cầu trên và thể hiện chúng một cách rõ ràng. Toàn bộ cửa sổ sát đất và lan can ban công đều sử dụng kính cường lực khung sắt hộp có khả năng chịu lực, chịu nhiệt tốt, đem lại vẻ đẹp hiện đại, sang trọng đồng thời tối ưu không gian mở, đưa ánh sáng tự nhiên vào bên trong biệt thự, khiến không gian bên trong biệt thự luôn sáng bừng tràn đầy sức sống.

Để mang tới không gian ngoại thất thật ấn tượng cho Thiết kế biệt thự hiện đại 2 tầng đẹp, KTS Việt Home đã sử dụng màu sơn trắng và gạch thẻ kết hợp linh hoạt với nhau. Việc sử dụng gạch thẻ ở khu vực áp mái, bồn hoa cửa sổ tầng 2... đã khiến thiết kế thể hiện sự khỏe khoắn trong kiến trúc và mang tới sự sang trọng. Còn gam màu trắng vừa tinh tế, vừa dễ dàng tôn lên những điểm nhấn đẹp góc cạnh cho công trình.
Hình khối kiến trúc của căn biệt thự 2 tầng hiện đại mạnh mẽ, các hệ cột vuông khoẻ khoắn được sắp đặt phi đối xứng mang nét phóng khoáng thu hút. Ngoài ra, Hệ thống cửa chính phụ và cửa sổ đều được thiết kế sử dụng vật liệu nhôm kính xingfa hiện đại, cùng với các kích thước được tính toán trên thước lỗ ban đảm bảo không gian phong thủy. Từ bên trong có thể ngắm nhìn ra bên ngoài, kết nối thiên nhiên hài hòa, nới rộng không gian sống, giao hoà nội - ngoại thất biệt thự.
2. Hình ảnh bố trí công năng
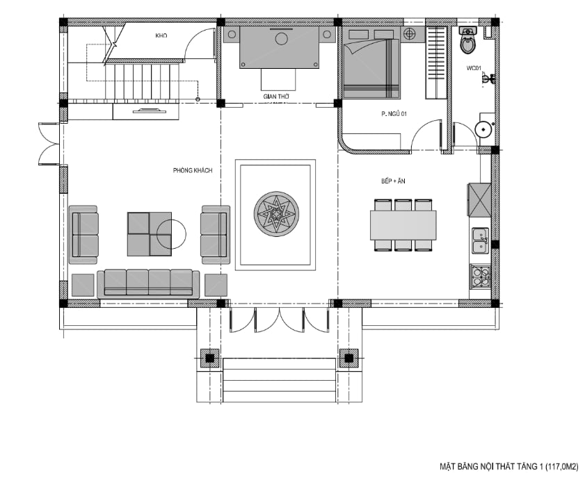
2.1. Tầng 1
+ Tầng 1: Phòng thờ + Phòng khách + Phòng bếp ăn + 1 Phòng ngủ + 1 WC
.png?453)
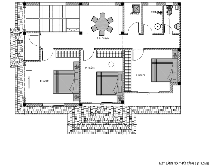
2.2. Tầng 2
+ Tầng 2: Phòng ngủ SHC + 3 Phòng ngủ + 1 WC
.png?695)
