Đẳng cấp mẫu biệt thự tân cổ điển 2 tầng của chủ đầu tư anh Dương tại Đan Phượng, Hà Nội
1. Phối cảnh 3D mặt tiền
Chủ đầu tư: Anh Dương
Địa điểm xây dựng: Đan Phượng, Hà Nội.
Công năng sử dụng:
+ Tầng 1: Phòng thờ+ Phòng khách + Bếp ăn + 1 Phòng ngủ + 1 WC
+ Tầng 2: 1 Phòng ngủ master + 2 Phòng ngủ thường + 2 WC

Biệt thự của gia đình anh Dương nổi bật với bố cục hình khối khoẻ khoắn, phóng khoáng cùng những đường nét hài hòa tạo nên tổng thể cân đối. Bố cục phân rõ hình khối chính phụ với sự chuẩn mực trong từng đường nét và tỷ lệ kiến trúc giúp biệt thự toát lên vẻ đẹp bề thế, thu hút mọi ánh nhìn. Ngoại thất với mặt tiền rộng rãi và lý tưởng được các KTS thiết kế chỉn chu và tỉ mỉ, từ màu sắc, vật liệu đến từng chi tiết trang trí đều được chọn lọc và phối hợp tinh tế để phô diễn trọn vẹn vẻ đẹp sang trọng và đẳng cấp của kiến trúc tân cổ điển.
Ngoại thất biệt thự 2 tầng mái Nhật sử dụng gam màu kem be tinh tế, quen thuộc trong kiến trúc tân cổ điển tạo nên hiệu ứng thẩm mỹ màu sắc tuyệt đẹp, khó bị lỗi thời, ngôi nhà nổi bật kết hợp hoàn hảo cùng màu ngói sang trọng, cửa nhôm kính cao cấp, hệ lan can sắt tĩnh điện,… Tất cả tạo nên một vẻ đẹp cao sang và cuốn hút.

Toàn bộ hệ cửa sổ bao quanh căn biệt thự được sử dụng chất liệu nhôm xingfa kính cường lực cao cấp mang đến cho không gian sự rộng mở, thông thoáng, các hệ cửa trên tầng 2 được thiết kế dạng vòm uốn cong mềm mại tạo nên sự kết nối cho phần mái phía trên đồng thời giúp căn phòng nào cũng đón nhận được tối đa ánh sáng và gió mát thiên nhiên. Bên cạnh đó, việc tạo một chiếc cửa kính lớn hình vòm cung giúp đánh lừa thị giác người nhìn, mang đến cảm giác về một không gian biệt thự rộng lớn, thoáng đãng và tiện nghi nhất.
Một trong những phần quan trọng tạo nên sự đặc trưng của kiến trúc Tân cổ điển mà không một kiến trúc nào khác sở hữu được đó chính là hoa văn phào chỉ. Ở mẫu biệt thự 2 tầng tân cổ điển này, gia chủ luôn hướng đến sự tinh tế, vì vậy Kiến trúc sư của Việt Home đã thiết kế các mẫu hoa văn nhỏ và phào chỉ chạy khắp tổng thể căn rất thanh thoát nhưng vẫn tạo được dấu ấn riêng thu hút ngưỡng chiêm ngưỡng.
Hệ trụ cột vuông với khối hình lớn tạo nên sự vững trãi trống đỡ ngôi nhà, được trang trí hoa văn, đường chỉ bắt mắt thêm phần bề thế hơn hẳn. Hầu hết xuyên suốt công trình đều là các đường phào chỉ kẻ từng chi tiết nhỏ đều được thiết kế với tỉ lệ chuẩn, bố trí cân đối và được chăm chút từng li từng tí để khi kết hợp với các loại vật liệu mới, những ô cửa vẫn mang đến một hơi thở phù hợp với thời đại, phù hợp với xu hướng kiến trúc nhà ở đang thịnh hành nhất hiện nay.
2. Hình ảnh bố trí công năng
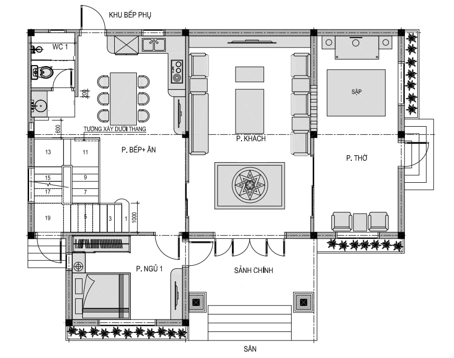
2.1. Tầng 1
+ Tầng 1: Phòng thờ+ Phòng khách + Bếp ăn + 1 Phòng ngủ + 1 WC
.png?177)
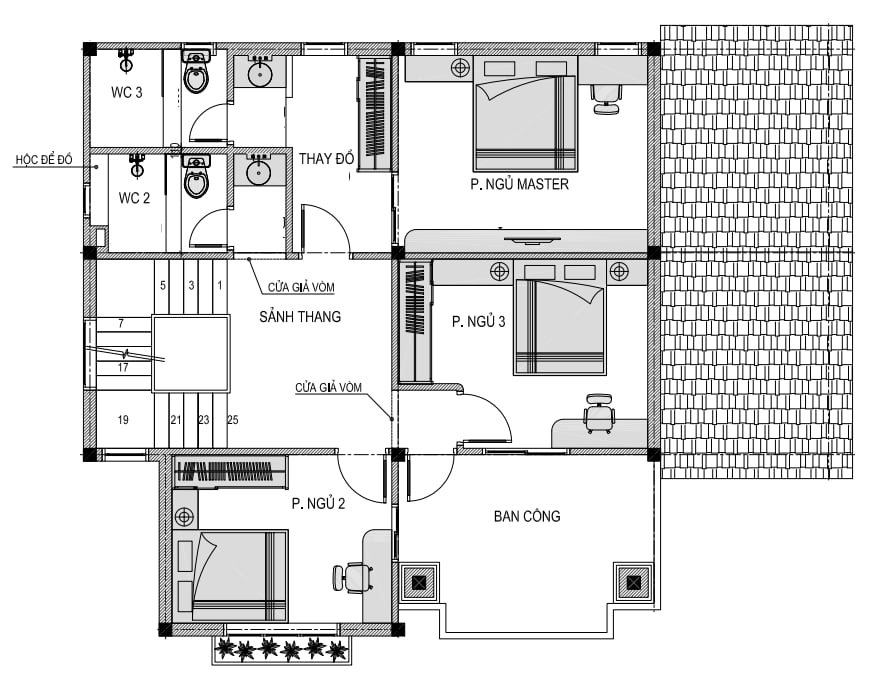
2.2. Tầng 2
+ Tầng 2: 1 Phòng ngủ master + 2 Phòng ngủ thường + 2 WC
.png?91)
