Đẳng cấp mẫu biệt thự hiện đại 3 tầng của chủ đầu tư anh Thắng tại Thanh Trì, Hà Nội
1. Phối cảnh 3D mặt tiền
Chủ đầu tư: Anh Thắng
- Địa điểm xây dựng: Thanh Trì, Hà Nội
- Công năng sử dụng:
+ Tầng 1: Phòng khách + Phòng bếp ăn + Phòng ngủ + WC
+ Tầng 2: 2 Phòng ngủ + WC + Sân chơi
+ Tầng 3: Phòng thờ + Phòng ngủ + Sân phơi

Dự án biệt thự 3 tầng mái bằng của chủ đầu tư anh Thắng tại Thanh Trì được Kiến trúc Việt Home thực hiện theo phong cách hiện đại, lịch lãm và tinh tế mang trọn sự cuốn hút với cá tính và đẳng cấp riêng của gia chủ. Với sắc xám ghi làm chủ đạo kết hợp cùng chất liễu gỗ tự nhiên tạo nên một không gian sáng tạo đậm chất nghệ thuật, dễ chịu và thư thái cho gia chủ. Vẫn là thiết kế cửa kính lớn tận dụng ánh sáng tự nhiên hay những góc nhỏ thật bình yên, hàng cây xanh gợi mở, được khéo léo lồng ghép trong không gian sống, căn nhà thực sự trở thành nơi trú ấn bình yên nhất.
Ban công ở mỗi tầng đều được thiết kế với kích thước và hình dáng khác nhau tạo ra sự đa dạng về mặt thị giác, tăng độ bay bổng và độc đáo cho kiến trúc hiện đại, thoát khỏi sự nặng nề và cứng nhắc của những khối bê tông. Chất liệu kính cường lực trong suốt kết hợp với khung kim loại hiện đại được sử dụng cho lan can, mang lại vẻ đẹp thanh thoát, đồng thời đảm bảo sự an toàn và bền vững cho căn biệt thự.

Kiến trúc bên ngoài của căn biệt thự ấn tượng là thế xong không gian bên trong còn khiến người ta trầm trồ, ngưỡng mộ hơn bao giờ hết bởi mỗi góc nhỏ đều được thiết kể tỉ mỉ, chỉn chu. Với phong cách thiết kế hiện đại, trẻ trung, Việt Home hướng đến việc đem đến cho khách hàng một ngôi nhà không chỉ đơn thuần là không gian để ở, mà còn là nơi để trải nghiệm, tận hưởng.
Ngoại thất căn biệt thự phố 3 tầng gây ấn tượng trong lòng chủ đầu tư bởi cách tổ chức hình khối, các mảng trang trí lớn, thiết kế mạch lạc tạo nên một diện mạo lôi cuốn ngay từ cái nhìn đầu tiên. Với lối kiến trúc hiện đại sử dụng hệ mái bằng , ban công các tầng đua rộng kết hợp với khối giật trên tầng tạo nên một sân chơi vô cùng lý tưởng.
Với thiết kế 3 tầng nên căn biệt thự có thể tận dụng tốt ánh sáng tự nhiên và tầm nhìn thoáng đãng. Từ trên cao, tầm nhìn sẽ được mở rộng giúp cho gia chủ có được cảm giác thoải mái và dễ chịu. Đặc biệt nếu nhà được xây dựng ở vị trí đẹp thì tầm nhìn là yếu tố góp phần tạo nên không gian sống trọn vẹn.
2. Công năng sử dụng
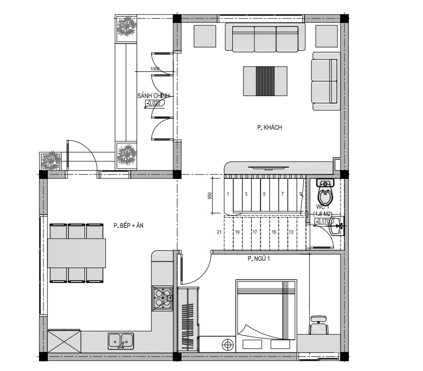
2.1. Tầng 1
+ Tầng 1: Phòng khách + Phòng bếp ăn + Phòng ngủ + WC
.png?38)
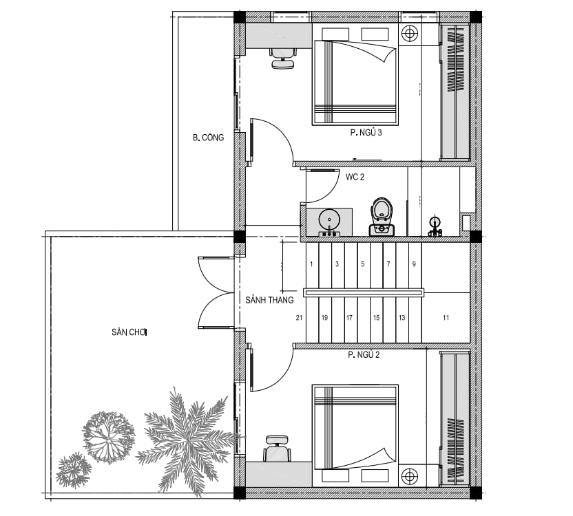
2.2. Tầng 2
+ Tầng 2: 2 Phòng ngủ + WC + Sân chơi
.png?864)
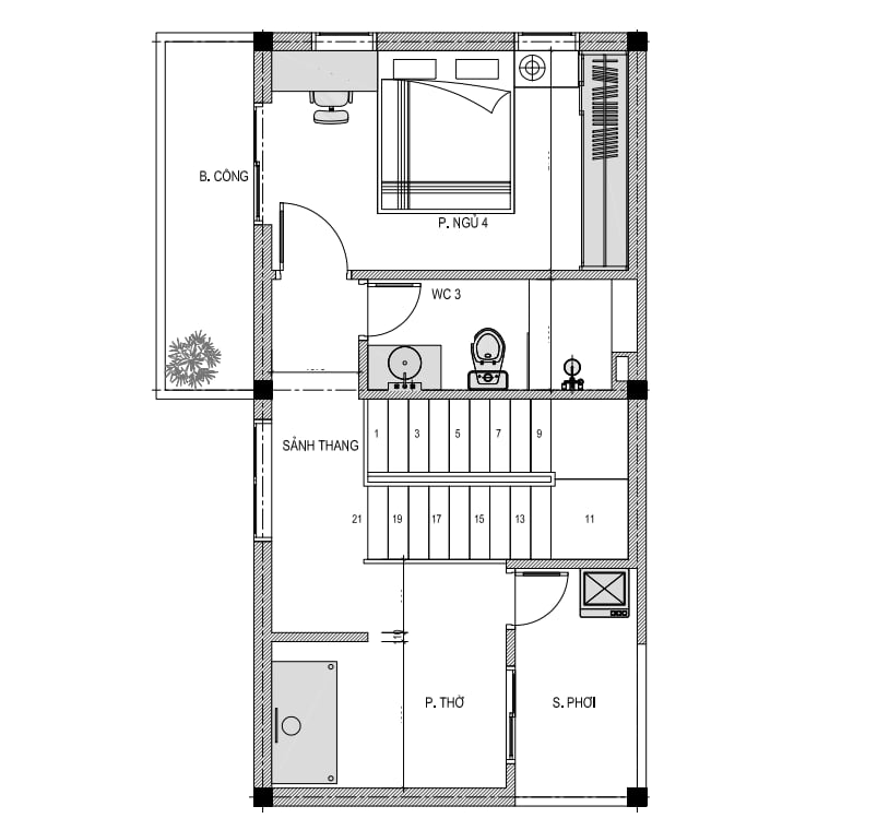
2.3. Tầng 3
+ Tầng 3: Phòng thờ + Phòng ngủ + Sân phơi
.png?747)
