Cùng chiêm ngưỡng mẫu biệt thự phố 2 tầng 1 tum hiện đại - Chủ đầu tư: Anh Toàn, Hà Nội
Mẫu biệt thự 2 tầng 1 tum ngày càng trở nên phổ biến, đặc biệt là ở những thành phố lớn. Nó không chỉ đáp ứng được một không gian sống tiện nghi, hiện đại, phóng khoáng mà còn phù hợp với điều kiện kinh tế của nhiều gia đình hiện nay.
Việt Home giới thiệu đến các bạn mẫu biệt thự phố 2 tầng 1 tum nhà anh Toàn nhé!
1. Phối cảnh 3D mặt tiền
- Chủ đầu tư: Anh Toàn
- Địa điểm xây dựng: Sơn Tây, Hà Nội
- Tên công trình: Nhà phố 2 tầng 1 tum hiện đại
- Công năng sử dụng:
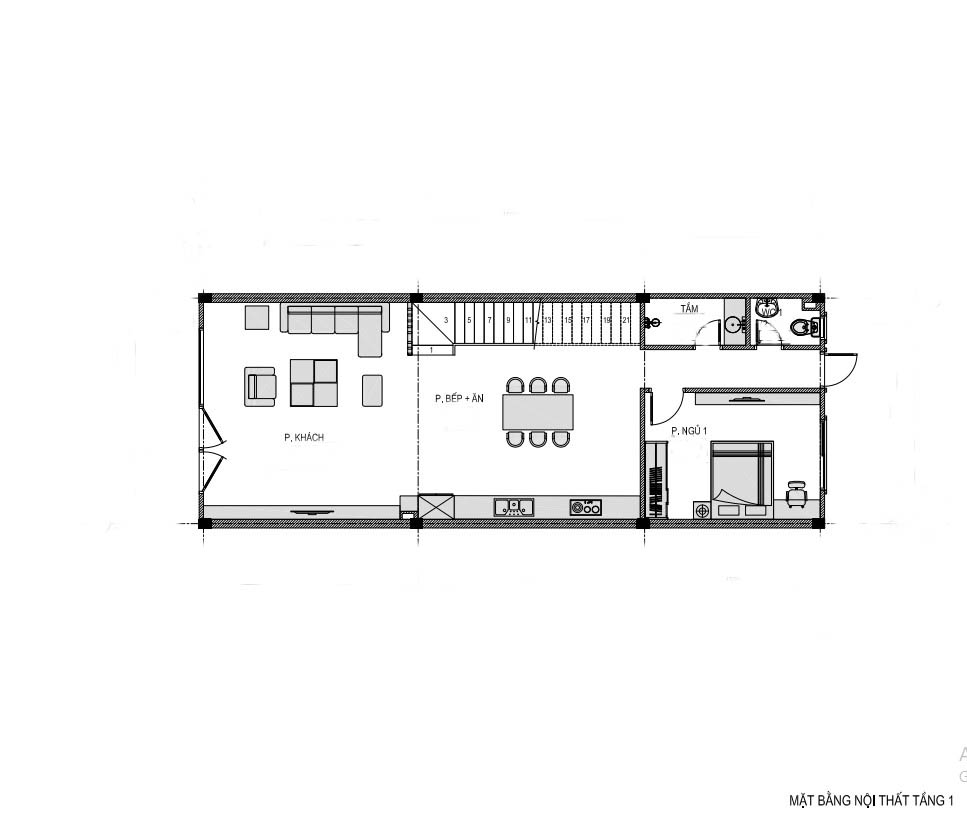
+ Tầng 1: Phòng khách + Phòng bếp + ăn + 1 Phòng ngủ + 1 WC
+ Tầng 2: 1 Phòng ngủ master + 2 Phòng ngủ thường + 1 WC
+ Tầng 3: Phòng thờ + Sân phơi + Sân thường

Căn nhà biệt thự được sử dụng cửa kính và bố trí nhiều cây xanh tạo không gian thoáng mát và gần gũi với thiên nhiên. Bố trí công năng hợp lý và tiện nghi. Không gia chung được thiết kế rộng rãi gắn kết thành viên trong gia đình.

2. Công năng sử dụng
2.1. Tầng 1
Tầng 1: Phòng khách + Phòng bếp + ăn + 1 Phòng ngủ + 1 WC

2.2. Tầng 2
Tầng 2: 1 Phòng ngủ master + 2 Phòng ngủ thường + 1 WC

2.3. Tầng tum
Tầng tum: Phòng thờ + Sân phơi + Sân thường

3. Hình ảnh giám sát thi công


Nếu bạn đang chuẩn bị xây dựng nhà, hãy liên hệ Việt Home để có được những mẫu thiết kế chất lượng và ưng ý nhất nhé!
