Chiêm ngưỡng mẫu nhà vườn 1 tầng mái Nhật đẹp của chủ đầu tư anh Hùng tại Hòa Bình
1. Phối cảnh 3D mặt tiền
- Chủ đầu tư: Anh Hùng
- Địa điểm xây dựng: Hòa Bình
- Tên công trình: Biệt thự vườn mái nhật
- Công năng sử dụng:
Phòng thờ + Phòng khách + Bếp ăn + 1 Phòng ngủ khép kín + 3 Phòng ngủ thường + 1 WC

Mặt tiền của mẫu nhà vườn 1 tầng mái Nhật được thiết kế theo phong cách hiện đại, cân đối và mang đến cảm giác bề thế, sang trọng ngay từ cái nhìn đầu tiên. Tổng thể công trình sử dụng gam màu trắng chủ đạo kết hợp với các mảng tường sơn xanh ghi nhạt tạo nên sự hài hòa và thanh lịch. Phần mái Nhật có độ dốc vừa phải, lợp ngói màu xanh đậm nổi bật, được thiết kế giật cấp tinh tế giúp ngôi nhà trông cao ráo và thoáng đãng hơn. Ở trung tâm mặt tiền là hệ sảnh chính với bậc tam cấp ốp đá sang trọng dẫn lên cửa ra vào bằng gỗ tự nhiên màu nâu đỏ, được chạm khắc hoa văn tinh xảo tạo điểm nhấn nổi bật cho toàn bộ công trình.
Hai bên sảnh được bố trí các cột vuông chắc chắn, kết hợp các đường phào chỉ ngang đơn giản nhưng tinh tế, giúp tăng thêm chiều sâu và sự vững chãi cho mặt đứng của ngôi nhà. Hệ thống cửa sổ được thiết kế rộng với khung màu tối kết hợp kính trong suốt, không chỉ tạo sự hiện đại mà còn giúp tận dụng tối đa ánh sáng tự nhiên và mang lại sự thông thoáng cho không gian bên trong. Phần chân tường được ốp đá tự nhiên màu xám đậm giúp bảo vệ công trình khỏi ẩm mốc đồng thời tăng tính thẩm mỹ. Khoảng sân phía trước được lát gạch gọn gàng, kết hợp với thảm cỏ xanh và các hàng cây trang trí tạo nên không gian sân vườn rộng rãi, thoáng mát, góp phần tôn lên vẻ đẹp thanh lịch và gần gũi với thiên nhiên của toàn bộ ngôi nhà.

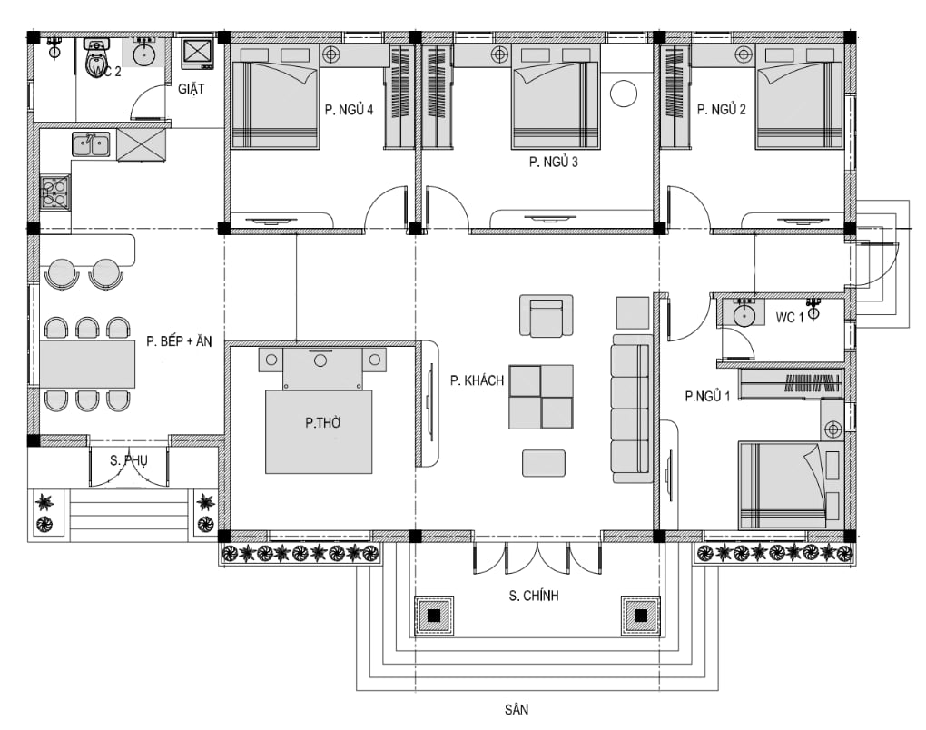
2. Hình ảnh bố trí công năng
Phòng thờ + Phòng khách + Bếp ăn + 1 Phòng ngủ khép kín + 3 Phòng ngủ thường + 1 WC
.png?297)
