Chiêm ngưỡng mẫu nhà phố2 tầng 1 tum của chủ đầu tư anh Hòa tại Cẩm Phả, Quảng Ninh
1. Phối cảnh 3D mặt tiền
Chủ đầu tư: Anh Hòa
- Địa điểm xây dựng: Quảng Ninh
- Công năng sử dụng:
+ Tầng 1: Gara + Phòng khách + Bếp ăn +WC
+ Tầng 2: 2 Phòng ngủ + Phòng ngủ Master + WC
+ Tầng tum: Phòng Thờ + Sân thượng , Sân phơi

Ngôi nhà hiện đại 2 tầng 1 tum đáp ứng các yêu cầu đặt ra của gia chủ, đồng thời cũng thể hiện rất rõ tư tưởng kiến trúc nhà ở tối giản, gần gũi với thiên nhiên. Được lấy cảm hứng từ những ngôi nhà phố với kiến trúc hiện đại và năng động, mẫu nhà 2 tầng 1 tum này mang đến sự trẻ trung và thanh lịch. Thiết kế nhà đảm bảo sự lưu thông không khí và lấy ánh sáng tốt nhờ vào hệ thống cửa kính và ban công rộng. Tầm nhìn còn được mở rộng hơn nhờ một khoảng lùi tạo sân vườn phía trước khá rộng rãi. Nơi đây, là cơi đỗ xe oto của gia chủ và một phần diện tích có thể trồng thêm cây xanh, biến cuộc sống trở nên gần gũi với thiên nhiên và bầu không khí được trong lành hơn.
Cửa được làm toàn bộ bằng hệ thống kính cường lực chắc chắn có độ bền cao kết hợp với khung nhôm Xingfa màu đen làm nổi bật lên vẻ đẹp của lối kiến trúc hiện đại. Lan can ban làm bằng kính cường lực giúp tạo cảm giác nới rộng cho không gian, mang lại cho ngôi nhà sự rộng rãi, thoáng mát. Ánh sáng là yếu tố vô cùng quan trọng trong thiết kế nhà phố do đó việc sử dụng cửa kính sẽ giúp căn nhà được tràn ngập ánh nắng thiên nhiên, loại bỏ ẩm mốc và nhiều vi khuẩn có hại. Bên cạnh đó, việc sử dụng gam màu trắng tinh tế làm chủ đạo, điểm thêm màu xám và cam gỗ tươi tắn của thanh ốp trang trí càng làm cho ngôi nhà trở nên sang trọng và lung linh hơn.

Hình thức kiến trúc mặt tiền với bố cục mạnh mẽ từ cách tạo hình của ban công, cửa kính, bồn hoa, mảng màu sắc… Tất cả hài hòa trong một tổng thể ấn tượng và cân đối. Mặc dù công năng chỉ gói gọn trong 2 tầng và 1 tum nhưng ngôi nhà có thể thiết kế đến 4 phòng ngủ. Bên cạnh đó, không gian phòng thờ và phòng khách cẫn được bố trí hợp lý theo đúng yêu cầu của gia chủ. Mỗi phòng đều đảm bảo nhu cầu sử dụng và phù hợp với thói quen sinh hoạt của từng thành viên trong gia đình. Ngoài ra, căn nhà cũng đã được nghiên cứu rất kĩ về phong thủy để đảm bảo mang lại nguồn sinh khí tốt nhất.
2. Công năng sử dụng
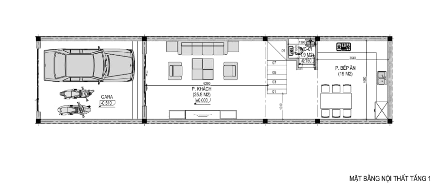
2.1. Tầng 1
+ Tầng 1: Gara + Phòng khách + Bếp ăn +WC
.png?841)
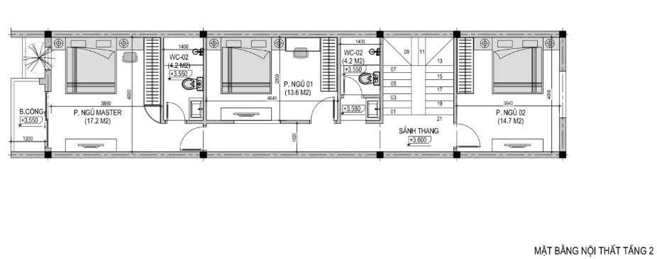
2.2. Tầng 2
+ Tầng 2: 2 Phòng ngủ + Phòng ngủ Master + WC
.png?977)
2.3. Tầng 3
+ Tầng tum: Phòng Thờ + Sân thượng , Sân phơi
.png?47)
