Chiêm ngưỡng mẫu nhà phố lô góc 2 mặt tiền hiện đại của chủ đầu tư anh Phúc tại Thanh Trì, Hà Nội
1. Phối cảnh 3D mặt tiền
Chủ đầu tư: Anh Phúc
- Địa điểm xây dựng: Thanh Trì, Hà Nội
- Công năng sử dụng:
+ Tầng 1: Khu để trống + Phòng bếp + WC
+ Tầng lửng: Khu để trống
+ Tầng 2: Khu để trống
+ Tầng 3: 5 Phòng ngủ khép kín
Sở hữu vị trí đắc địa ngay lô góc với hai mặt tiền thoáng đãng, mẫu nhà phố lô góc 3 tầng kết hợp kinh doanh đang trở thành xu hướng được gia đình anh Phúc quan tâm. Không chỉ đáp ứng nhu cầu sinh hoạt tiện nghi, mẫu nhà này còn là giải pháp tối ưu để khai thác mặt bằng kinh doanh hiệu quả, mang lại giá trị kinh tế lâu dài. Với phong cách thiết kế hiện đại, công năng khoa học và khả năng tùy biến cao, công trình là lựa chọn hoàn hảo , một không gian “2 trong 1” lý tưởng.
Mặt tiền của mẫu nhà phố lô góc 3 tầng được thiết kế hiện đại với các khối vuông vức tạo cảm giác mạnh mẽ kết hợp cùng lối thiết kế độc đáo giúp công trình trở nên hài hòa và thu hút hơn. Thiết kế này không chỉ tận dụng tối đa ưu thế hai mặt tiền tiếp giáp đường, mà còn tạo điểm nhấn thẩm mỹ độc đáo, mang đến sự cân đối giữa đường nét cứng cáp và sự uyển chuyển tinh tế của kiến trúc hiện đại.

Thiết kế lô góc giúp công trình tận dụng tối đa ánh sáng tự nhiên và gió trời, đồng thời nâng tầm thẩm mỹ với ban công kính cường lực, các mảng ốp lam gỗ trang trí, và hệ thống cửa kính lớn mở rộng tầm nhìn. Tầng 1 được ốp đá màu tối sang trọng, phù hợp cho mục đích kinh doanh, trong khi tầng trên lại mang lại cảm giác thư giãn với cây xanh bố trí hợp lý. Đây là sự kết hợp hoàn hảo giữa không gian ở và không gian thương mại trong cùng một công trình.
Thay vì sử dụng hệ tường kín gây cảm giác bí bách và chỉ điểm xuyết những ô cửa nhỏ, mẫu nhà phố lô góc 3 tầng này được thiết kế mở với hệ kính khổ lớn bao phủ hầu hết các mặt thoáng. Việc sử dụng kính cường lực không chỉ giúp lấy sáng tối đa, tăng cường khả năng đối lưu không khí mà còn tạo hiệu ứng không gian rộng rãi, sang trọng. Toàn bộ công trình sử dụng các vật liệu hiện đại như kính, nhôm, đá ốp cao cấp và lam gỗ ngoài trời, mang đến diện mạo thanh thoát, trẻ trung và phù hợp với xu hướng kiến trúc đương đại.
Kiến trúc hiện đại không thiên về những gam màu sặc sỡ, mà chú trọng vào sự tinh tế và hài hòa trong tổng thể. Mỗi công trình đều sở hữu nét đẹp riêng biệt, nổi bật nhờ sự tối giản trong phối màu và việc lược bỏ những chi tiết trang trí rườm rà. Thay vào đó, kiến trúc tập trung khai thác tối đa các yếu tố tự nhiên như ánh sáng, tầm nhìn và không gian mở để tạo điểm nhấn. Trong mẫu thiết kế này, gam màu chủ đạo là trắng, xám mang lại cảm giác trang nhã, nhẹ nhàng.
2. Công năng sử dụng
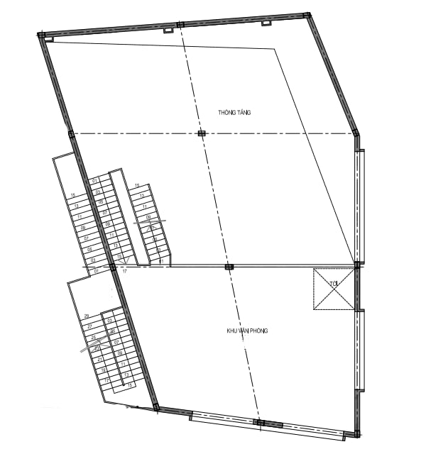
2.1. Tầng 1
+ Tầng 1: Khu để trống + Phòng bếp + WC
.png?808)
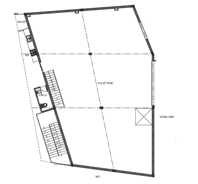
2.2. Tầng lửng
+ Tầng lửng: Khu để trống

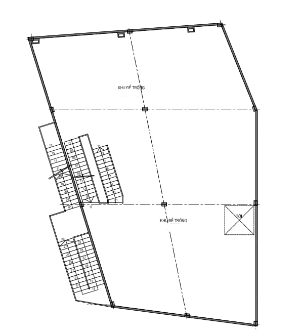
2.3. Tầng 2
+ Tầng 2: Khu để trống
.png?988)
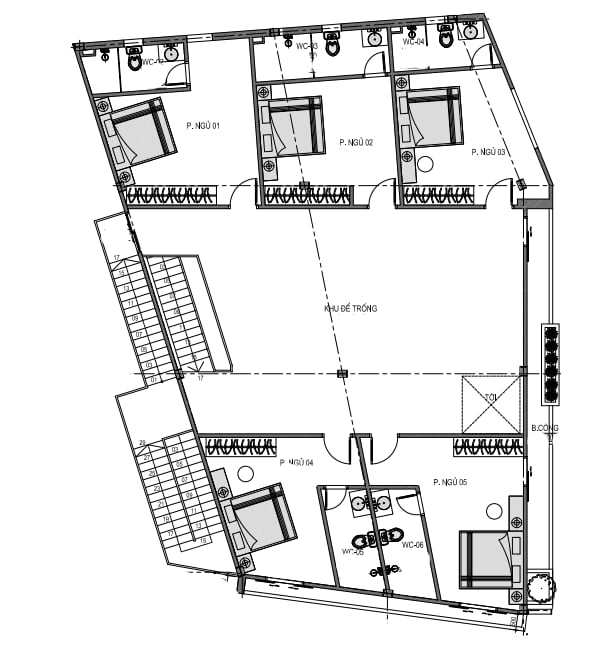
2.4. Tầng 3
+ Tầng 3: 5 Phòng ngủ khép kín
.png?635)
