Chiêm ngưỡng mẫu nhà phố 3 tầng tân cổ điển của chủ đầu tư anh Trường ở Hà Nội
Nhà phố tân cổ điển là một thiết kế nhà ống khá phổ biến, phù hợp với những lô đất có diện tích vừa phải. Với mặt tiền không quá rộng, ngôi nhà vẫn đảm bảo được sự sang trọng và tinh tế của phong cách tân cổ điển. Ngoại thất của mẫu nhà này thường được nhấn mạnh bởi hệ thống cột trụ, phào chỉ, hoa văn trang trí tỉ mỉ, mang đến vẻ đẹp cổ điển, quý phái. Nội thất bên trong được bố trí khoa học, tận dụng tối đa không gian, kết hợp hài hòa giữa nét đẹp truyền thống và hiện đại, tạo nên không gian sống thoải mái và tiện nghi cho gia đình.
1. Phối cảnh 3D mặt tiền
Chủ đầu tư: Anh Trường
- Địa điểm xây dựng: Hà Nội
- Công năng sử dụng:
+ Tầng 1: Gara + Phòng khách + Bếp ăn +WC
+ Tầng 2: Phòng ngủ khép kín + 2 Phòng ngủ thường + WC
+ Tầng 3: Phòng thờ + Phòng ngủ + WC + Sân phơi

Vẻ đẹp đặc trưng dễ dàng nhận thấy nhất ở những căn nhà này là bố cục không gian, hình khối và trang trí mang đậm tính chất cổ điển. Thông qua các đường nét hoa văn trang trí trên cột nhà, các bức tường, ban công, mái và cổng rào. Tất cả toát lên sự quý phái, trang nhã, mang lại cảm nhận về sự giàu có, sang trọng cho gia chủ.
Ngôi nhà vô cùng tinh tế và thu hút với mặt tiền đơn giản và đẹp tập trung vào sự thanh lịch và tinh tế. Mặt tiền của ngôi nhà phản ánh nét tân cổ điển thông qua những trụ cột nhỏ, cửa sổ lớn và các họa tiết, hoa văn trang trí. Màu sắc chủ đạo là màu trắng, tạo nên sự tinh tế và thanh lịch. Các chi tiết cổ điển như cửa đối xứng và lan can được kết hợp với các yếu tố hiện đại như cửa kính lớn, tạo nên một sự cân bằng hoàn hảo. Bên cạnh đó, cây xanh được bố trí xung quanh tạo ra môi trường thư giãn và kết nối với thiên nhiên. Sự hài hòa tinh tế giữa kiến trúc, con người hòa với thiên nhiên xanh. Tạo nên một sự kết nối đầy mềm mại giữa kiến trúc và môi trường.

Hình khối ngoại thất không quá mới lạ nhưng phần mái bằng mang lại nét thời thượng. Mái bằng giúp điều tiết ánh sáng tự nhiên một cách thông minh. Tạo nên một bầu không khí trong lành và thoải mái cho không gian bên trong. Mẫu nhà mái bằng từng là mẫu nhà thịnh hành nhất trước kia bởi khả năng thi công nhanh chóng, tiết kiệm chi phí. Ngày nay sự sáng tạo giữa nhà phố tân cổ điển 3 tầng với bề mặt mái Bằng hiện đại cũng mang tới vẻ đẹp cuốn hút. Và trở thành một trong những mẫu nhà ưa chuộng hiện nay. Nó càng trở nên phù hợp với những ngôi nhà phố có diện tích nhỏ và vừa.
2. Công năng sử dụng
2.1. Tầng 1
+ Tầng 1: Gara + Phòng khách + Bếp ăn +WC
.png?649)
2.2. Tầng 2
+ Tầng 2: Phòng ngủ khép kín + 2 Phòng ngủ thường + WC
.png?743)
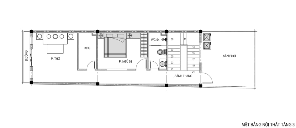
2.3. Tầng 3
+ Tầng 3: Phòng thờ + Phòng ngủ + WC + Sân phơi
.png?969)
