Chiêm ngưỡng mẫu nhà phố 3 tầng tân cổ đep tại Hà Nội - Chủ đầu tư: Anh Tùng
1. Phối cảnh 3D mặt tiền
- Chủ đầu tư: Anh Tùng
- Địa điểm xây dựng: Chương Mỹ, Hà Nội
- Tên công trình: Nhà phố 3 tầng tân cổ điển
- Công năng sử dụng:
+ Tầng 1: Phòng khách + Bếp + WC
+ Tầng 2: Phòng SHC + 2 Phòng ngủ + WC
+ Tầng 3: Phòng thờ + 1 Phòng ngủ + 1 WC + khu giặt phơi
.jpg?341)
Nhà ống tân cổ điển 3 tầng mang đến vẻ đẹp sang trọng, quý phái, thể hiện sự đẳng cấp của gia chủ. Ngôi nhà nổi bật với các đường nét hoa văn uốn lượn, tỉ mỉ được chạm khắc trên cột, phào chỉ, ban công, tạo nên vẻ đẹp tinh tế và sang trọng. Ngôi nhà của gia đình anh Tùng là một thiết kế nhà ống khá phổ biến, phù hợp với những lô đất có diện tích vừa phải. Với mặt tiền nhỏ, ngôi nhà vẫn đảm bảo được sự sang trọng và tinh tế của phong cách tân cổ điển.
Màu trắng trang nhã làm chủ đạo, kết hợp hài hòa với các chi tiết màu tối ở khung cửa và có thể là mái, tạo nên sự tương phản thu hút mọi ánh nhìn. Việc bố trí nhiều cửa sổ kính lớn là một giải pháp thông minh trong thiết kế nhà ống 3 tầng, giúp tối ưu hóa ánh sáng tự nhiên và tạo sự kết nối với không gian bên ngoài.

2. Hình ảnh bố trí công năng
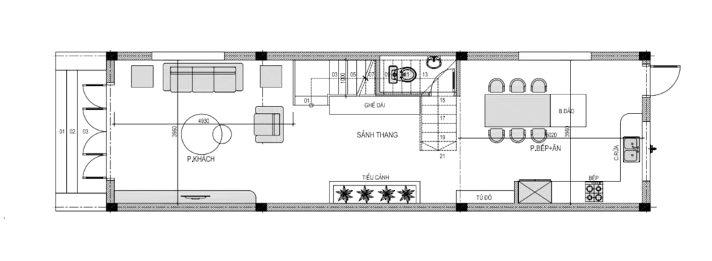
2.1. Tầng 1
Tầng 1: Phòng khách + Bếp + WC

.png?693)
2.2. Tầng 2
Tầng 2: Phòng SHC + 2 Phòng ngủ + WC
.png?868)
2.3. Tầng 3
Tầng 3: Phòng thờ + 1 Phòng ngủ + 1 WC + khu giặt phơi
.png?560)
Bản vẽ thiết kế bao gồm:
Bản vẽ chi tiết kiến trúc và phối cảnh ngoại thất 3D
Bản vẽ chi tiết kiến trúc
Bản vẽ kết cấu công trình
Bản vẽ hệ thống ME (Điện – Nước – Điều hòa – Thông gió – An ninh…)
Dự toán công trình: chi tiết chi phí xây dựng – Tổng mức đầu tư
Toàn bộ hồ sơ thiết kế công năng các phòng và kiến trúc đều được tư vấn hợp theo Phong thủy và tuổi của chủ đầu tư. Kích thước các phòng, chiều cao nhà và kích thước cửa đều theo kích thước phong thủy.
Bạn đang dự định xây nhà. Liên hệ ngay Việt Home để được tư vấn nhé!
