Chiêm ngưỡng mẫu nhà phố 3 tầng 1 tum - Anh Khánh Quảng Ninh
Sở hữu lô đất với mặt tiền khiêm tốn, anh Khánh lựa chọn thiết kế nhà phố hiện đại vừa tận dụng tối đa diện tích sử dụng, vừa mang đến cho ngôi nhà nét đẹp hài hòa, hiện đại.
1. Phối cảnh mặt tiền

Nhìn từ xa, nhà phố hiện lên thật uy nghi và bề thế với tông màu trắng hiện đại pha nâu trầm sang trọng. Việc tạo dựng những khối hình thể vuông vức xếp chồng lên nhau cũng là 1 nét đẹp tiêu biểu của thiết kế nhà phố hiện đại.
Càng tiến lại gần, mẫu thiết kế 3 tầng 1 tum lại càng thu hút và thông thoáng bởi hệ thống cửa kinh và đẹn LED các tầng. Ban công là không gian thiên nhiên lý tưởng để chủ nhân ngôi nhà trồng cây hoa, cây xanh hay hóng gió, thư giãn mỗi ngày.
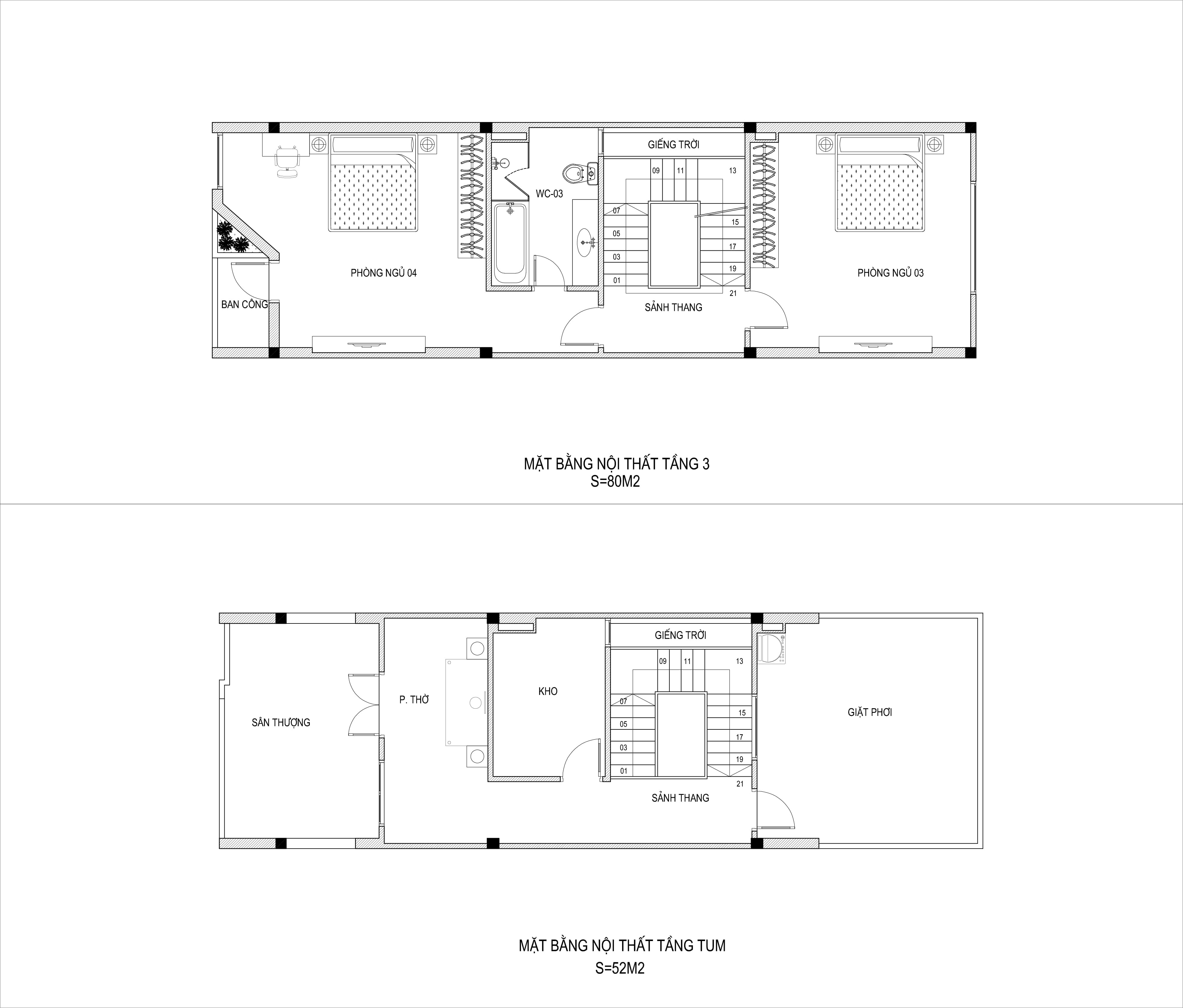
2. Mặt bằng công năng
Diện tích xây dựng: 80 m2 / sàn
- Tầng 1 được bố trí hợp lý với gara, phòng khách, bếp, nhà vệ sinh và sân ướt. Ngay sau cổng vào nhà là phần gara dài 5m, đủ thoải mái để xe ô tô khi về nhà. Tiếp đó là phòng khách thuận tiện cho việc tiếp đón khách. Tiếp đến là phòng bếp với diện tích tích vừa đủ mang tới sự ấm cúng khi gia đình quây quần ăn cơm.
- Tầng 2 bố trí 2 phòng ngủ và 1 nhà vệ sinh kế bên. Ban công là không gian để gia đình trồng hoa, cây cảnh.
Ngoài ra, nhà anh Khánh bố trí phần giếng trời giúp ngôi nhà trở nên thông thoáng hơn.

- Giống như tầng 2, tầng 3 cũng được bố trí 2 phòng ngủ, 1 nhà vệ sinh và ban công.
- Tầng tum là khu vực đặt phòng thờ, phòng phơi đồ và sân thượng.

Bạn đã có ý tưởng cho tổ ấm tương lai chưa? Liên hệ Việt Home ngay để nhận tư vấn mẫu nhà phù hợp nhất.
