Chiêm ngưỡng mẫu nhà phố 2 tầng 1 tum siêu đẹp mắt của chủ đầu tư anh Ninh tại Hà Nội
Tinh tế trong từng đường nét, phong cách tối giản mang đến một diện mạo thanh lịch và hiện đại cho không gian sống. Thay vì những chi tiết cầu kỳ, Việt Home tập trung vào hình khối rõ ràng, màu sắc trung tính và cách bố trí không gian hợp lý để tạo cảm giác rộng rãi, thoáng đãng. Mẫu nhà phố 2 tầng 1 tum theo phong cách này không chỉ đề cao công năng sử dụng mà còn giúp gia chủ tận hưởng sự thoải mái trong một môi trường gọn gàng, nhẹ nhàng nhưng đầy sức hút.
1. Phối cảnh 3D mặt tiền
Chủ đầu tư: Anh Ninh
- Địa điểm xây dựng: Chương Mỹ
- Công năng sử dụng:
+ Tầng 1: Phòng khách , Phòng Bếp + Ăn + 1 Phòng ngủ
+ Tầng 2: Phòng thờ + 3 Phòng ngủ thường + 1 WC.
+ Tầng tum: Sân chơi, Sân phơi

Ngôi nhà của gia đình anh Ninh mang phong cách hiện đại đã tạo nên một tổ ấm độc đáo và sang trọng. Thiết kế mặt tiền bắt mắt với những đường nét kiến trúc gãy gọn, tạo nên một diện mạo mới lạ cho ngôi nhà. Sự kết hợp tinh tế của các vật liệu cao cấp và kính đã mang lại vẻ sang trọng đẳng cấp. Những đường nét kiến trúc cong cong mềm mại càng tôn thêm vẻ đẹp uyển chuyển cho mặt tiền.
Căn nhà gây ấn tượng bởi gam màu nhẹ nhàng, dịu mát, tạo ra một không gian sáng sủa và sạch sẽ. Sự kết hợp tinh tế của các màu sắc trung tính và màu gỗ trầm ấm giúp tạo nên không gian rộng rãi và ấm cúng. Mỗi phòng ngủ đều được trang bị nội thất tiện nghi và có cửa sổ để lấy ánh sáng tự nhiên và thông gió.
Bên cạnh đó, công trình còn được thiết kế với sự tối ưu hóa các khu vực chức năng, đảm bảo không gian sinh hoạt thoải mái và thuận tiện cho cả gia đình. Nội thất hiện đại và tối giản vừa đảm bảo tính ứng dụng cao, vừa tối ưu hóa chi phí cho gia chủ. Mỗi vật dụng trong ngôi nhà đều được chọn lựa kỹ càng, tạo nên những điểm nhấn độc đáo và nổi bật trong từng không gian.
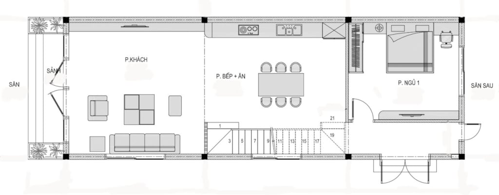
2. Công năng sử dụng
2.1. Tầng 1
+ Tầng 1: Phòng khách , Phòng Bếp + Ăn + 1 Phòng ngủ

.png?330)
2.2. Tầng 2
+ Tầng 2: Phòng thờ + 3 Phòng ngủ thường + 1 WC.
.png?378)
2.3. Tầng 3
+ Tầng tum: Sân chơi, Sân phơi
.png?674)
