Chiêm ngưỡng mẫu nhà ngang cấp 4 nông thôn đẹp, tiết kiệm chi phí của chủ đầu tư anh Duẩn - Hưng Yên
Nhà ngang cấp 4 vẫn luôn là một trong những công trình kiến trúc được yêu thích từ xưa đến nay bởi lối kiến trúc truyền thống bền chắc mang nhiều giá trị cả về vật chất lẫn giá trị văn hóa, khi mà có nhiều công trình tồn tại cả hàng thế kỷ, chứng kiến bao sự đổi thay của nhịp sống và con người, chứa đựng những kỉ niệm và kí ức tuổi thơ yên bình. Chủ đầu tư anh Duẩn ở đây mong muốn xây dựng 1 khuôn viên sống thật trong lành, xanh mát để có thể an dưỡng tuổi già cũng như là nơi con cháu sum họp quây quần mỗi kỳ nghỉ, lễ tết . Ngôi nhà có chi phí xây dựng thấp hơn nhiều so với các loại hình nhà ở khác. Điều này giúp nhiều gia đình dễ dàng sở hữu một ngôi nhà tiện nghi và thoải mái đảm bảo đủ không gian sinh hoạt cho các thành viên trong gia đình.
1. Phối cảnh 3D
- Chủ đầu tư: Anh Duẩn
- Địa điểm xây dựng: Hưng Yên
- Tên công trình: Nhà ngang cấp 4
- Công năng sử dụng: Phòng khách + Phòng thờ + 2 Phòng ngủ + 1 WC

Từ xa nhìn lại mẫu thiết kế nhà cấp 4 mái ngói đỏ đầy tinh tế, với hình khối bố cục vững chắc và kiên cố, cùng với mặt tiền ấn tượng có sức hút thẩm mĩ cao. Bố cục được phân bố theo hình khối , kiến trúc phân bố đồng đều và được tính toán chi tiết với từng mảng khối nhỏ. Công trình lấy tông màu trắng là màu chủ đạo phối hợp với màu đỏ tươi của mái và chân tường vô cùng nổi bật. Điểm nhấn mặt tiền chính là bậc tam cấp giữ vai trò kết nối nhà với sân tạo vẻ sang trọng và tinh tế cho công trình, đảm bảo ngôi nhà của gia đình anh Duẩn xây lên không chỉ quan trọng vẻ bề ngoài mà còn đảm bảo đầy đủ công năng giúp gia chủ sử dụng an toàn và thuận lợi.

Nếu như để ý kỹ thì toàn bộ ngoại thất công trình đều mang lại cảm giác dịu dàng. Kiến trúc mái ngói đỏ có cấu trúc cực kì đơn giản bởi đặc tính của ngói là gọn, nhẹ nên dễ dàng thi công. Ngoài ra với độ dốc vừa phải còn giúp thoát nước mưa tốt tránh ẩm mốc cho ngôi nhà.
Ở khu vực cửa chính anh Tân lựa chọn cửa được làm từ gỗ nâu nhằm tạo sự nổi bật và tăng thêm phần chắc chắn cho toàn bộ công trình. Khu vực cửa sổ 2 bên là là sự kết hợp hoàn hảo giữa cửa nhôm giả gỗ và cửa kính cường lực giúp đón ánh sáng cho không gian trong nhà. Thêm vào đó, bố cục không gian ngoại thất được thiết kế vuông vắn, tạo hình khối mạch lạc cùng một hệ thống sân vườn xanh mát đem đến cảm giác thư thái cho gia chủ.
Khoảng sân trước được thiết kế rất rộng rãi và thoáng mát, nổi bật với thiết kế gạch màu xanh cho thấy sự tối giản, sang trọng và hiệu quả khi sử dụng. Xung quanh gia chủ trồng các loại cây xanh giúp không gian tự nhiên xung quanh căn nhà có được sự gần gũi với thiên nhiên và giúp không gian mát mẻ hơn.
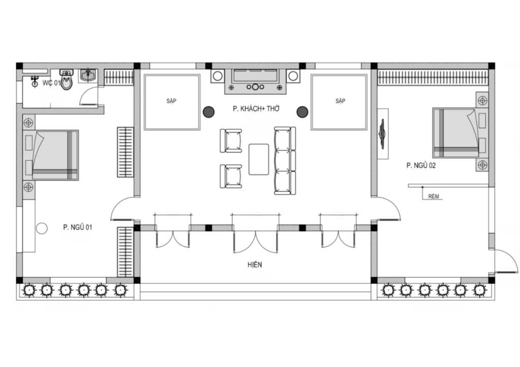
2. Bố trí công năng sử dụng
- Công năng sử dụng: Phòng khách + Phòng thờ + 2 Phòng ngủ + 1 WC
.png?870)
Để lại thông tin liên hệ ngay để được tư vấn miễn phí
.png?47)
