Chiêm ngưỡng mẫu nhà mái Thái 2 tầng hiện đại của chủ đầu tư anh Ba tại Chương Mỹ, Hà Nội
1. Phối cảnh 3D mặt tiền
Chủ đầu tư: Anh Ba
- Địa điểm xây dựng: Hà Nội
- Công năng sử dụng:
Tầng 1: Phòng khách + Bếp ăn + Phòng ngủ + WC
Tầng 2: Phòng thờ + 3 Phòng ngủ + WC

Mẫu nhà mái thái 2 tầng này có khả năng chống thấm nước vô cùng hiệu quả. Đặc biệt, thiết kế mái thái có độ thoải, dốc khiến cho quá trình thoát nước vào mùa mưa nhanh chóng và dễ dàng hơn. Điều này giúp hạn chế tối đa tình trạng tích tụ nước trên mái nhà, gây ẩm thấp, rêu phong làm mất mỹ quan.
Thiết kế nhà 2 tầng của gia đình anh Ba nổi bật với thiết kế thi công chắc chắn, kiến cố. Công trình được xây dựng với những hình khối hài hòa, cân đối trong tổng thể ngôi nhà. Những hình khối này được chạm trổ hoa văn, đường nét tinh tế, cầu kỳ, sắc sảo và điêu luyện tăng sự nổi bật, tạo điểm nhấn khác biệt, độc đáo cho ngôi nhà. Toàn bộ hệ thống cửa đều được các kiến trúc sư Việt Home cân nhắc kỹ lưỡng sử dụng vật liệu cao cấp kính cường lực cùng với khung nhôm xingfa tối màu tăng sự ấn tượng, nổi bật cho ngôi nhà.
Là một người yêu thích sự nhã nhặn tinh tế anh Ba và gia đình đã chọn tông màu xám và trắng giúp cho màu sắc của ngôi nhà trở nên nhẹ nhàng nhưng vẫn sang trọng và tinh tế. Ngoài ra, tuỳ theo mỗi không gian, KTS Việt Home còn phối hợp thêm màu sắc khác để công trình càng nổi bật và có thêm những năng lượng tích cực. Mỗi công trình xây dựng đều được Việt Home cân nhắc kỹ lưỡng, mong muốn mang đến thiết kế khác biệt, độc đáo nhất cho gia chủ.
2. Công năng sử dụng
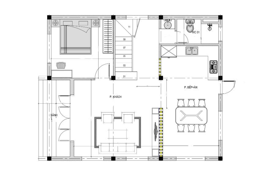
2.1. Tầng 1
Tầng 1: Phòng khách + Bếp ăn + Phòng ngủ + WC
.png?733)
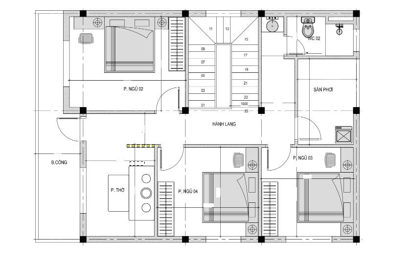
2.2. Tầng 2
Tầng 2: Phòng thờ + 3 Phòng ngủ + WC
.png?819)
