Chiêm ngưỡng mẫu nhà mái Thái 2 tầng của chủ đầu tư Mr. Chiến tại Hà Nội
Công trình được thiết kế theo phong cách sang trọng, kết hợp hài hòa giữa kiến trúc hiện đại và hơi hướng cổ điển Châu Âu. Với tông màu trắng tinh tế chủ đạo, hệ mái thái xám ghi thanh thoát và những chi tiết phào chỉ mềm mại, ngôi nhà toát lên vẻ đẳng cấp, tinh tế và bền vững theo thời gian.
1. Phối cảnh 3D mặt tiền
- Chủ đầu tư: Anh Chiến
- Địa điểm xây dựng: Thanh Oai, Hà Nội
- Tên công trình: Biệt thự 2 tầng mái Thái
- Công năng sử dụng:
+ Tầng 1: Phòng khách + Phòng bếp ăn + 2 Phòng ngủ + 1 WC
+ Tầng 2: Phòng Thờ+ Phòng ngủ master + 2 Phòng ngủ thường + 1 WC

Ngôi nhà là sự kết hợp hoàn hảo giữa kiến trúc tân cổ điển và yếu tố hiện đại, mang đến không gian sống đẳng cấp, tiện nghi và bền đẹp theo thời gian. Mỗi chi tiết đều được tính toán kỹ lưỡng – từ tỷ lệ cột, độ vươn mái đến ánh sáng tự nhiên – tất cả cùng tạo nên một tổng thể vừa sang trọng, vừa gần gũi và tinh tế. Không chỉ đảm bảo yếu tố thẩm mỹ, công năng, phong thủy, mà còn thể hiện phong cách sống đẳng cấp và gu thẩm mỹ tinh tế của gia chủ. Mặt tiền ngôi nhà gây ấn tượng mạnh với khối kiến trúc cân đối, đăng đối. Hệ cột trụ tròn ở tiền sảnh tạo cảm giác vững chãi, bề thế, đồng thời nâng đỡ phần mái vòm mềm mại phía trên – điểm nhấn sang trọng cho tổng thể. Cửa chính gỗ tự nhiên với hoa văn tinh tế kết hợp kính lấy sáng, thể hiện sự bề thế và phong thủy tốt. Phía trên, mái thái chữ A được thiết kế giật cấp, có độ dốc vừa phải, không chỉ đảm bảo thoát nước mưa tốt mà còn tăng tính thẩm mỹ, giúp công trình trở nên cao ráo và thanh thoát hơn.
Ngôi nhà 2 tầng của gia đình anh Chiến nổi bật với bảng màu trắng kem chủ đạo – gam màu thể hiện sự tinh khôi, sang trọng và bền vững theo thời gian. Màu trắng giúp làm nổi bật các chi tiết phào chỉ, cột trụ và mái vòm, đồng thời tạo cảm giác rộng rãi, sạch sẽ và thanh lịch cho tổng thể công trình. Trên nền trắng thanh nhã ấy, mái Thái màu xám ghi được lựa chọn như một điểm nhấn tinh tế, tạo nên sự tương phản nhẹ nhàng nhưng đầy cân đối. Tông xám trung tính vừa mang nét hiện đại, vừa giữ được cảm giác ấm áp, gần gũi. Các khung cửa sổ nhôm kính đen tạo đường nét mạnh mẽ, hiện đại, giúp công trình không bị đơn điệu mà thêm phần khỏe khoắn. Ban công sử dụng lan can sắt sơn đen tĩnh điện kết hợp cùng chậu cây xanh nhỏ, tạo điểm nhấn nhẹ nhàng, tăng sức sống và sự mềm mại cho mặt tiền. Tất cả các gam màu – trắng, xám, nâu, đen và xanh cây – được phối hợp khéo léo, tạo nên một tổng thể hài hòa, sang trọng và thu hút ánh nhìn từ mọi góc độ.
2. Bố trí công năng
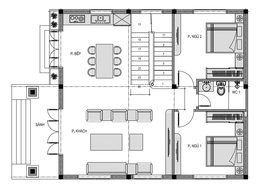
2.1. Tầng 1
+ Tầng 1: Phòng khách + Phòng bếp ăn + 2 Phòng ngủ + 1 WC
.png?72)
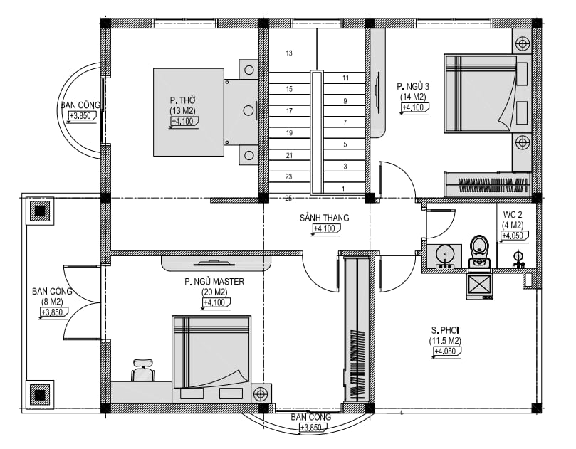
2.2. Tầng 2
+ Tầng 2: Phòng Thờ+ Phòng ngủ master + 2 Phòng ngủ thường + 1 WC
.png?175)
