Chiêm ngưỡng mẫu nhà mái Nhật tân cổ điển 2 tầng đẹp như mơ của chủ đầu tư anh Bình tại Bắc Giang
1. Phối cảnh 3D mặt tiền
- Chủ đầu tư: Anh Bình
- Địa điểm xây dựng: Bắc Giang
- Tên công trình: Biệt thự 2 tầng mái Nhật
- Công năng sử dụng:
+ Tầng 1: Phòng khách + Phòng thờ + 1 phòng ngủ khép kín + 1 Phòng ngủ thường
+ Tầng 2: Phòng SHC +3 phòng ngủ thường + 1 WC

Ngay từ cổng vào, ngôi nhà đã toát lên khí chất đẳng cấp với hệ thống trụ cột chạm khắc hoa văn tinh xảo, làm nổi bật vẻ đẹp tân cổ điển đầy quyến rũ. Ngôi nhà sử dụng màu sơn trắng làm chủ đạo rất phù hợp với phong cách tân cổ điển thanh lịch và mang lại cảm giác tinh khôi, rộng rãi và trang nhã cho toàn bộ công trình. Sự kết hợp hài hòa giữa vẻ đẹp hiện đại tinh gọn và nét cổ điển sang trọng, tạo nên tổng thể kiến trúc thanh lịch nhưng không kém phần bề thế. Gam màu trắng trang nhã làm nền tôn lên sắc xanh than của hệ mái Nhật và ánh vàng đồng nổi bật từ lan can nhôm đúc, hệ thống cửa gỗ – những điểm nhấn giúp công trình thêm phần đẳng cấp và cuốn hút.
Nổi bật tại khu vực sảnh chính là hệ cột vuông kiên cố, được thiết kế với tỉ lệ chuẩn xác, vừa đảm nhiệm vai trò nâng đỡ mái hiên, vừa góp phần tôn lên vẻ đẹp khỏe khoắn, sang trọng cho công trình. Đặc biệt, điểm nhấn của ngôi nhà nằm ở các chi tiết phào chỉ và phù điêu tinh xảo được thi công hoàn toàn thủ công bởi đội ngũ thợ lành nghề. Những chi tiết này không chỉ góp phần làm nổi bật vẻ đẹp bề thế của ngôi nhà mà còn thể hiện sự tỉ mỉ, kỹ thuật cao bởi bề mặt thi công không phẳng như thông thường, đòi hỏi sự cẩn trọng và kỹ năng điêu luyện để đảm bảo sự hoàn hảo đến từng chi tiết nhỏ. Đây cũng chính là yếu tố ghi điểm đầu tiên trong mắt người nhìn khi bước vào không gian sống này

Sảnh chính của ngôi nhà được đầu tư kỹ lưỡng với việc sử dụng đá ốp hoa cương cao cấp, vừa làm tăng vẻ bề thế vừa đảm bảo độ bền dài lâu. Cửa chính của ngôi nhà được làm từ gỗ tự nhiên cao cấp, mang lại sự ấm áp, gần gũi và tăng thêm vẻ sang trọng, bề thế cho tổng thể kiến trúc nhà 2 tầng . Phía trên cửa chính, các ô kính pano được bố trí khéo léo để tận dụng ánh sáng tự nhiên giúp không gian bên trong ngôi nhà luôn thoáng đãng, sáng sủa và tràn ngập sức sống.
2. Hình ảnh bố trí công năng
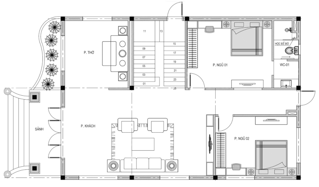
2.1. Tầng 1
+ Tầng 1: Phòng khách + Phòng thờ + 1 phòng ngủ khép kín + 1 Phòng ngủ thường
.png?402)
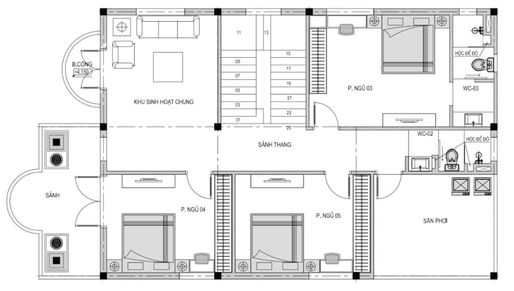
2.2. Tầng 2
+ Tầng 2: Phòng SHC +3 phòng ngủ thường + 1 WC
.png?563)
