Chiêm ngưỡng mẫu nhà mái Nhật 2 tầng siêu đẹp mắt của chủ đầu tư anh Hà tại Hải Dương
1. Phối cảnh 3D mặt tiền
- Chủ đầu tư: Anh Hà
- Địa điểm xây dựng: Hải Dương
- Tên công trình: Biệt thự 2 tầng mái nhật
- Công năng sử dụng:
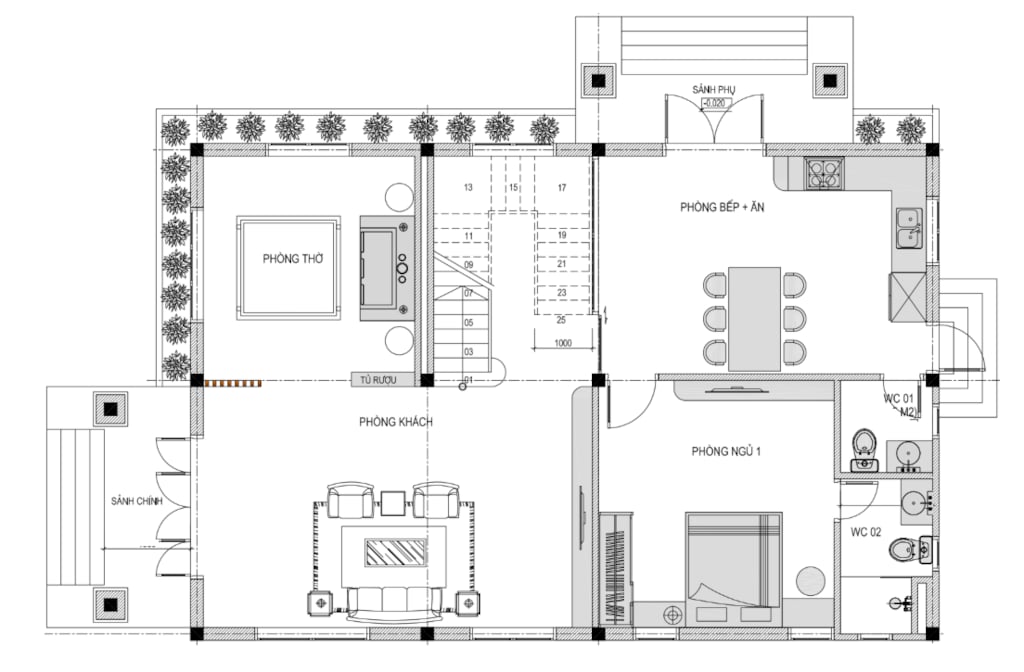
+ Tầng 1: Phòng thờ + Phòng khách + Phòng bếp ăn + 1 Phòng ngủ khép kín + 1 WC
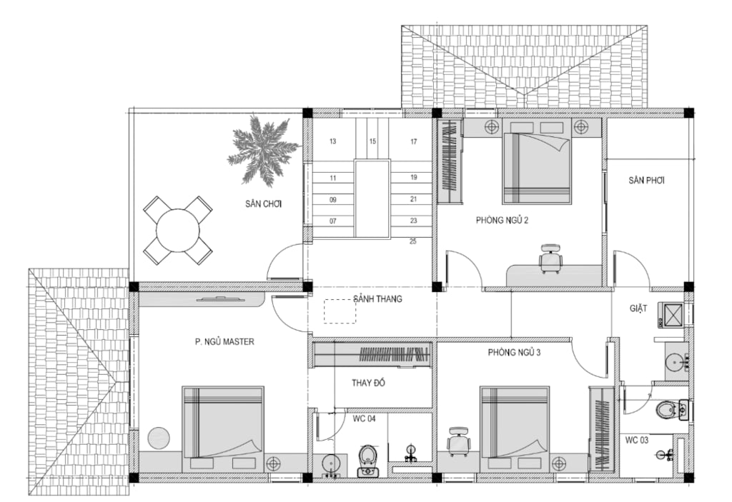
+ Tầng 2: Phòng ngủ Master + 2 Phòng ngủ + 1 WC + Sân chơi, sân phơi

Ngôi nhà sở hữu mái Nhật truyền thống với độ dốc vừa phải, tạo nên vẻ đẹp thanh lịch và hiện đại. Mái nhà được lợp bằng ngói màu tối, tạo điểm nhấn cho ngôi nhà. Tầng trệt được thiết kế với cửa chính lớn, tạo cảm giác thông thoáng và rộng rãi. Các cửa sổ được bố trí hài hòa, giúp không gian bên trong luôn tràn ngập ánh sáng tự nhiên. Tầng hai thường được thiết kế với ban công rộng, tạo không gian thư giãn và ngắm cảnh. Các phòng ngủ được bố trí ở tầng này, đảm bảo sự riêng tư cho các thành viên trong gia đình. Ngôi nhà vẫn giữ được nét đẹp truyền thống của kiến trúc Nhật Bản với mái dốc, cửa sổ lớn, nhưng đồng thời cũng được trang bị những tiện nghi hiện đại.
Gam màu trắng chủ đạo bao phủ toàn bộ không gian ngoại thất, mang lại cảm giác thanh lịch, sang trọng và rộng mở cho ngôi nhà. Trên nền trắng trang nhã ấy, các mảng màu xanh dương dịu mát được nhấn nhá tinh tế tại các vị trí như phần tường phân tầng, khu vực giáp mái, các đường kẻ chỉ tạo nên sự chuyển tiếp mềm mại, đồng thời giúp làm nổi bật các chi tiết kiến trúc một cách tinh tế.
Ngôi nhà của gia đình anh Hà được thiết kế với hệ thống cửa sổ, ban công rộng rãi, giúp đón ánh sáng và gió tự nhiên, tạo không gian sống thoáng đãng, gần gũi với thiên nhiên. Ngoài ra, việc kết hợp với sân vườn hoặc tiểu cảnh giúp nâng cao chất lượng cuộc sống, mang lại sự thoải mái và thư giãn cho gia đình. Đây là ngôi nhà điển hình cho những ai yêu thích sự đơn giản, tinh tế và muốn có một không gian sống thoải mái, gần gũi với thiên nhiên.
2. Hình ảnh bố trí công năng
2.1. Tầng 1
+ Tầng 1: Phòng thờ + Phòng khách + Phòng bếp ăn + 1 Phòng ngủ khép kín + 1 WC
.png?910)
2.2. Tầng 2
+ Tầng 2: Phòng ngủ Master + 2 Phòng ngủ + 1 WC + Sân chơi, sân phơi
.png?20)
