Chiêm ngưỡng mẫu nhà mái Nhật 2 tầng hiện đại của chủ đầu tư anh Tân tại Nam Định
1. Phối cảnh 3D mặt tiền
- Chủ đầu tư: Anh Tân
- Địa điểm xây dựng: Nam Định
- Tên công trình: Biệt thự 2 tầng mái nhật
- Công năng sử dụng:
+ Tầng 1: Phòng khách + Phòng bếp ăn + 1 Phòng ngủ + 1 WC
+ Tầng 2: Phòng thờ +3 Phòng ngủ + 1 WC + Sân chơi sân phơi

Sự cân đối trong từng đường nét kiến trúc là yếu tố then chốt giúp nhà mái Nhật 2 tầng chinh phục nhiều chủ đầu tư khó tính. Thay vì phô trương bằng những chi tiết phức tạp, mẫu nhà này đề cao sự tối giản nhưng tinh tế, thể hiện qua hình khối vuông vắn, tỷ lệ chuẩn chỉnh và sự thống nhất giữa phần mái, mặt đứng và bố trí công năng. Chính nhờ sự hài hòa ấy, tổng thể công trình luôn tạo cảm giác ổn định, trang nhã và dễ hòa nhập với môi trường xung quanh, dù xây dựng ở khu vực đô thị hay nông thôn.
Mặt tiền của ngôi biệt thự được thiết kế với hình khối khỏe khoắn, rõ ràng, mang đậm tinh thần hiện đại. Các mảng tường được bố trí theo chiều dọc và ngang một cách logic, tạo ra hiệu ứng thị giác chiều sâu, khiến ngôi nhà trở nên cao ráo và bề thế hơn. Công trình sử dụng màu trắng là tone màu chủ đạo được tô điểm thêm hệ thống đèn ở trên tường cùng màu xanh dương của hệ mái kết hợp với nhau một cách hài hòa và ăn ý, nâng đỡ nhau giúp bố cục màu sắc của ngôi nhà trở nên đẹp mắt hơn.
Cửa kính lớn giúp đón ánh sáng tự nhiên, tạo không gian mở, thoáng đãng và gần gũi với thiên nhiên. Bên trong, không gian được bố trí hợp lý với các phòng chức năng phân chia rõ ràng, từ phòng khách rộng rãi, bếp ăn tiện nghi đến các phòng ngủ thoải mái. Phong cách hiện đại trong thiết kế nhà mái Nhật của ngôi nhà gia đình anh Tùng còn thể hiện ở việc sử dụng các vật liệu bền vững, tiết kiệm năng lượng, mang lại sự tiện nghi và thoải mái cho gia đình trong suốt quá trình sử dụng.
2. Hình ảnh bố trí công năng
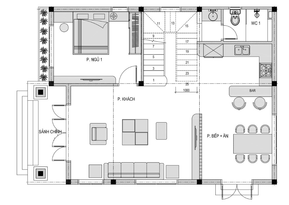
2.1. Tầng 1
+ Tầng 1: Phòng khách + Phòng bếp ăn + 1 Phòng ngủ + 1 WC
.png?96)
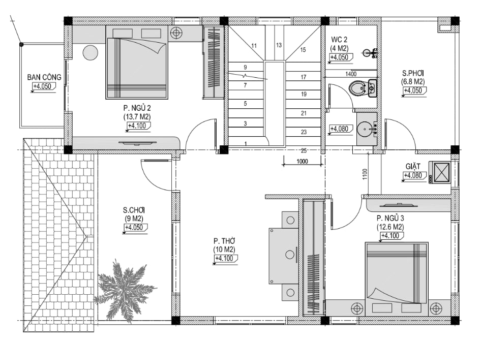
2.2. Tầng 2
+ Tầng 2: Phòng thờ +3 Phòng ngủ + 1 WC + Sân chơi sân phơi
.png?218)
