Chiêm ngưỡng mẫu nhà mái Nhật 2 tầng của chủ đầu tư Mr.Yên tại Chương Mỹ, Hà Nội
1. Phối cảnh 3D mặt tiền
- Chủ đầu tư: Anh Yên
- Địa điểm xây dựng: Hà Nội
- Tên công trình: Biệt thự 2 tầng mái nhật
- Công năng sử dụng:
+ Tầng 1: Phòng thờ+ Phòng khách + bếp ăn + Phòng ngủ + WC
+ Tầng 2: 3 Phòng ngủ + WC + Sân phơi, sân chơi

Nhìn một cách tổng quát, bao trùm chúng ta có thể thấy được căn nhà là sự kết hợp một cách hết sức tài tình giữa phong cách kiến trúc hiện đại và hệ mái Nhật mới mẻ. Với không gian gồm 2 tầng thoáng ở mọi mặt đã giúp mẫu nhà trở nên thoáng mát hơn bao giờ hết. Ngoại thất của ngôi nhà mái Nhật gây ấn tượng mạnh mẽ bởi các đường nét kiến trúc, các dạng hình khối độc đáo cùng với đó là các vật liệu trang trí mới lạ. Tất cả đã hòa quyện lại với nhau góp phần mang đến một không gian sống mới mẻ, sang trọng và bề thế, trường tồn cùng thời gian.
Tổng thể không gian ngoại thất của mô hình nhà kiểu Nhật khoác lên mình một màu trắng chủ đạo được tô điểm bởi sắc nâu của các khung cửa sổ, gạch ốp tường, săc vàng của lan can và đặc biệt là màu xanh của hệ mái. Tất cả đã kết hợp với nhau một cách hài hòa và ăn ý, nâng đỡ nhau giúp bố cục màu sắc của ngôi nhà trở nên đẹp mắt và thanh thoát.
Màu xanh của hệ mái kiểu Nhật đã làm bật lên được không gian sống đậm chất Nhật Bản của ngôi nhà này. Khi ở trong ngôi nhà sẽ luôn cảm nhận được sự mát mẻ và thoáng mát. Nét đặc trưng của hệ mái Nhật đó chính là có độ dốc nhẹ, được mở đều đều ra theo 4 hướng khác nhau, với thiết kế lớp chồng lớp vô cùng sinh động.
Hệ mái Nhật không chỉ đẹp về mặt thẩm mỹ mà còn mang lại cho mô hình nhà hiện đại của bạn rất nhiều những ưu điểm khác nhau như vì được đổ đều theo 4 mặt nên góp phần che nắng che mưa cho không gian nhà, tránh được các tác hại của thời tiết ảnh hưởng đến màu sơn ngoại thất.

Mang phong cách kiến trúc hiện đại nhưng ngôi nhà 2 tầng mái Nhật này được thiết kế các hệ trụ cột vuông vức, bề thế. Các cặp trụ cột ở sảnh chính và sảnh phụ được đắp to ở chân như nâng đỡ toàn bộ công trình. Hệ bậc ngũ cấp giúp ngôi nhà trở nên cao ráo, rộng rãi hơn. Toàn bộ bậc lát đá hoa cương làm tăng vẻ sang trọng đồng thời dễ dàng lau chùi dọn vệ sinh. Các khối hình học được áp dụng trong thiết kế này đều tận dụng triệt để kiến trúc khỏe khoắn và trẻ trung. Khi kết hợp với ban công kính, cửa kính khung nhôm xingfa, cây cối đã tạo nên điểm nhấn khiến cho ngôi nhà trở nên nổi bật thể hiện đẳng cấp của gia chủ.
Phía ban công tầng 2 được bố trí giàn hoa được sơn màu đen sang trọng với màu sơn của hệ mái tạo nên một tổng thể không gian hài hòa về màu sắc. Phía trên giàn hoa còn được thiết kế đổ bê tông giúp che mưa, che nắng cho các thành viên trong nhà mỗi khi lên ngắm hoa hay trò chuyện. Ban công lớn ở tầng 2 cũng được thiết kế vô cùng lạ mắt, tận dụng triệt để hệ cột vuông . Phía trước ban công được đặt một hàng hoa nhỏ tạo sự thanh thoát, tô điểm sự nhẹ nhàng cho ngôi Biệt thự 2 tầng đẹp.
2. Hình ảnh bố trí công năng
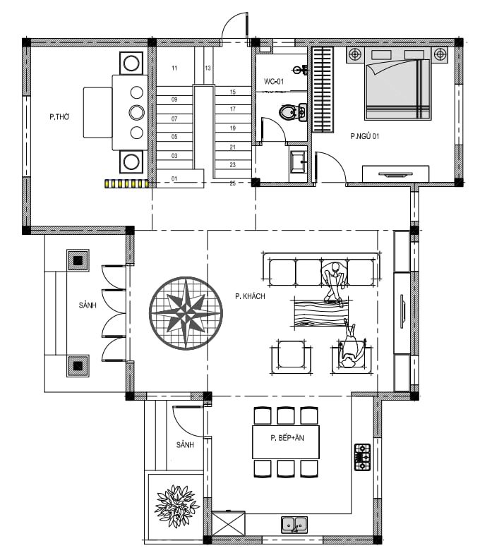
2.1. Tầng 1
+ Tầng 1: Phòng thờ+ Phòng khách + bếp ăn + Phòng ngủ + WC
.png?902)
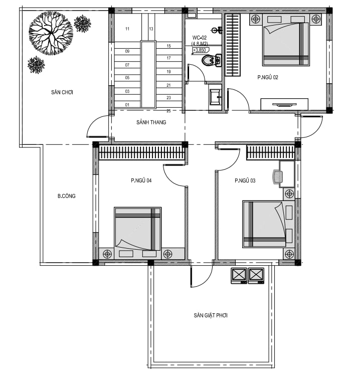
2.2. Tầng 2
+ Tầng 2: 3 Phòng ngủ + WC + Sân phơi, sân chơi
.png?970)
3. Hình ảnh thi công

