Chiêm ngưỡng mẫu nhà mái Nhật 2 tầng của chủ đầu tư anh Liêm tại Thanh Hóa
1. Phối cảnh 3D mặt tiền
- Chủ đầu tư: Anh Liêm
- Địa điểm xây dựng: Thanh Hóa
- Tên công trình: Biệt thự 2 tầng mái nhật
- Công năng sử dụng:
+ Tầng 1: Phòng thờ + Phòng khách + Phòng bếp ăn + 1 Phòng ngủ khép kín + 1 WC
+ Tầng 2: Phòng ngủ Master + 2 Phòng ngủ + 2 WC + Sân chơi, sân phơi

Công trình khoác lên mình màu trắng sang trọng, nhẹ nhàng, thanh thoát kết hợp cùng với màu nâu ấm áp của những vật liệu trang trí hiện đại khác. Vị trí chân tường được ốp đá chẻ, giáp chân tường được sơn giả đá, khu vực giáp tầng 2 được ốp gạch trang trí. Vị trí giáp với sàn mái được sơn màu nâu, sự kết hợp này tạo nên hiệu quả trong việc phối màu.
Căn nhà sở hữu mặt tiền rộng vô cùng bề thế với hệ cột trụ vuông ở sảnh chính. Cột trụ vuông không cần trang trí cầu kỳ nhưng vẫn cuốn hút người nhìn bởi cách tạo điểm nhấn lõm sâu, sơn màu nâu sang trọng trên nền trắng. Việc sử dụng hệ cột trung vuông bằng bê tông cốt thép có biện pháp thi công đơn giản hơn so với việc sử dụng cột tròn.
Cửa chính được làm bằng chất liệu gỗ kết hợp pano kính. Hệ cửa còn lại được làm bằng nhôm hệ Xingfa kết hợp với kính cường lực an toàn. Các chi tiết đều được chăm chút, tỉ mĩ. Mái Nhật nổi bật với màu xanh than truyền thống. Hình khối mái Nhật mang lại giá trị thẩm mỹ cao, bề thế hơn so với những mẫu mái khác và phù hợp với đặc điểm khí hậu ở nước ta, có tính chống nóng, cách nhiệt, giảm tiếng ồn khi mưa lớn. Khuôn viên ngôi nhà tạo dựng cùng cây xanh gần gũi thiên nhiên đưa toàn bộ các thành viên gia đình trong không gian thư giãn, thoải mái.
2. Hình ảnh bố trí công năng
2.1. Tầng 1
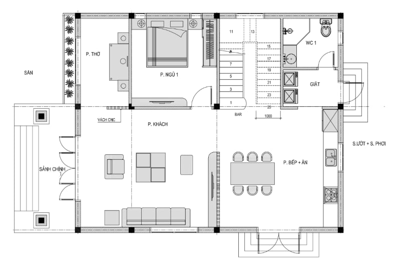
+ Tầng 1: Phòng thờ + Phòng khách + Phòng bếp ăn + 1 Phòng ngủ khép kín + 1 WC
.png?251)
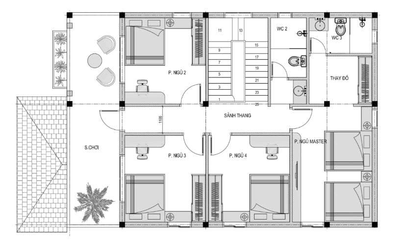
2.2. Tầng 2
+ Tầng 2: Phòng ngủ Master + 2 Phòng ngủ + 2 WC + Sân chơi, sân phơi
.png?265)
