Chiêm ngưỡng mẫu nhà 2 tầng mái nhật - Chủ đầu tư: anh Thuận, Phú Thọ
1. Phối cảnh 3D mặt tiền
- Chủ đầu tư: Anh Thuận
- Địa điểm xây dựng: Phú Thọ
- Tên công trình: Biệt thự 2 tầng mái nhật
- Công năng sử dụng:
+ Tầng 1: Phòng khách + Phòng bếp + 1 Phòng ngủ + WC
+ Tầng 2: Phòng thờ + 1 Phòng ngủ master + 2 phòng ngủ thường + 1 WC

Nhìn một cách tổng quát, bao trùm chúng ta có thể thấy được căn nhà là sự kết hợp một cách hết sức tài tình giữa phong cách kiến trúc hiện đại và hệ mái Nhật mới mẻ. Với không gian gồm 2 tầng thoáng ở mọi mặt đã giúp mẫu nhà trở nên thoáng mát hơn bao giờ hết. Ngoại thất của ngôi nhà mái Nhật gây ấn tượng mạnh mẽ bởi các đường nét kiến trúc, các dạng hình khối độc đáo cùng với đó là các vật liệu trang trí mới lạ. Tất cả đã hòa quyện lại với nhau góp phần mang đến một không gian sống mới mẻ, sang trọng và bề thế, trường tồn cùng thời gian.
Màu sắc chủ đạo thiết kế 2 tầng mái Nhật này là trắng. Màu trắng được sử dụng cho hầu hết các chi tiết ngoại thất như tường, cột, phào chỉ, ban công, tạo nên vẻ đẹp thanh lịch, tinh tế và sang trọng. Màu trắng cũng làm nổi bật các chi tiết trang trí và giúp cho biệt thự trở nên sáng sủa và thoáng đãng hơn. Bên cạnh màu trắng, màu xanh than của mái Nhật cũng là một điểm nhấn quan trọng, tạo sự tương phản và thu hút ánh nhìn. Ngoài ra, màu nâu gỗ của cửa chính và màu đen của khung cửa sổ cũng góp phần tạo nên sự hài hòa và cân đối cho tổng thể kiến trúc.
Tổng thể không gian ngoại thất của mô hình nhà kiểu Nhật khoác lên mình một màu trắng chủ đạo được tô điểm bởi sắc nâu của các khung cửa sổ, gạch ốp tường, săc vàng của lan can và đặc biệt là màu xanh của hệ mái. Tất cả đã kết hợp với nhau một cách hài hòa và ăn ý, nâng đỡ nhau giúp bố cục màu sắc của ngôi nhà trở nên đẹp mắt và thanh thoát.
Màu xanh của hệ mái kiểu Nhật đã làm bật lên được không gian sống đậm chất Nhật Bản của ngôi nhà này. Khi ở trong ngôi nhà sẽ luôn cảm nhận được sự mát mẻ và thoáng mát. Nét đặc trưng của hệ mái Nhật đó chính là có độ dốc nhẹ, được mở đều đều ra theo 4 hướng khác nhau, với thiết kế lớp chồng lớp vô cùng sinh động.
2. Hình ảnh bố trí công năng
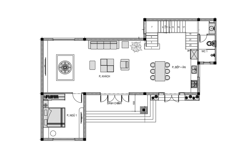
2.1. Tầng 1
Phòng khách + Phòng bếp + 1 Phòng ngủ + WC
.png?933)
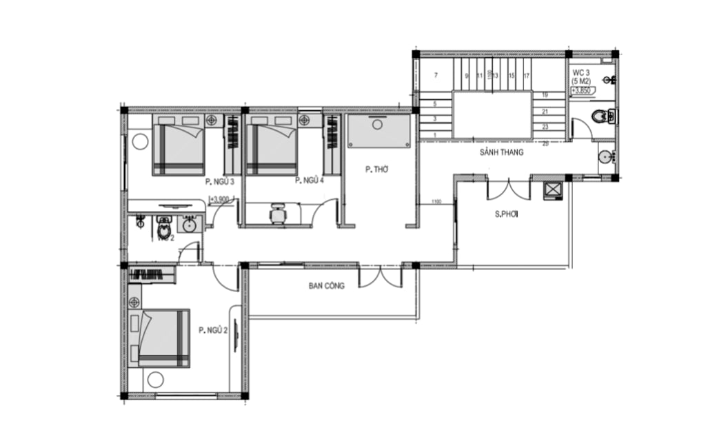
2.2. Tầng 2
Phòng thờ + 1 Phòng ngủ master + 2 phòng ngủ thường + 1 WC
.png?688)
