Chiêm ngưỡng biệt thự vườn mái nhật đẳng cấp - Chủ đầu tư: Anh Thư, Hà Nội
1. Phối cảnh 3D mặt tiền
- Chủ đầu tư: Anh Thư
- Địa điểm xây dựng: Sóc Sơn, Hà Nội
- Tên công trình: Nhà vườn 1 tầng mái Nhật
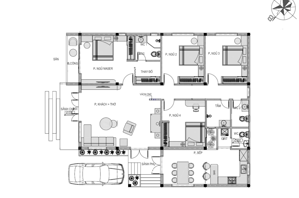
- Công năng: Phòng khách kết hợp thờ + Bếp + 1 Phòng ngủ khép kín + 3 phòng ngủ thường + 1 WC

Mặt tiền có độ rộng khi đưa sảnh đua về phía trước, với bậc tam cấp cao 5 bậc tổng thể được đẩy lên bắt mắt hơn. Phần chân tường sẽ khiến ngôi nhà trở nên khoẻ khoắn hơn khi sử dụng đá chẻ để đảm bảo độ bền đẹp, hạn chế rêu mốc, trường tồn với thời gian.
Vì gia chủ yêu thích không gian mở nên các kiến trúc sư đã thiết kế cho mẫu nhà vườn mái Nhật 1 tầng thêm hệ cửa sổ bố trí ở khắp các mặt giải pháp để lấy sáng, đón gió hiệu quả. Cửa chính được sử dụng bằng cửa gỗ tự nhiên, các hệ cửa còn lại sử dụng kính kết hợp với nhôm hệ Xingfa, tận dụng nguồn sáng thiên nhiên.
Kết cấu mái nhật có chiều cao vừa phải đảm bảo che chắn linh hoạt thêm phần khối mái đua ra các hướng giúp thiết kế nhà biệt thự độ mở và rộng hơn. Với mẫu biệt thự 1 tầng có diện tích sân vườn rộng rãi tạo nên không gian sống đẳng cấp. Đặc biệt, chi phí thiết kế, xây dựng vô cùng hợp lý, thời gian thi công nhanh chóng.

2. Bố trí công năng sử dụng
Phòng khách kết hợp thờ + Bếp + 1 Phòng ngủ khép kín + 3 phòng ngủ thường + 1 WC

Các kiến trúc sư tại Việt Home với nhiều kinh nghiệm trong lĩnh vực thiết kế thi công nhà ở với kiến thức chuyên môn và gu thẩm mỹ nghệ thuật cao cam kết sẽ sáng tạo hết mình mang lại không gian sống lý tưởng nhất cho bạn và gia đình.
