Chiêm ngưỡng biệt thự 3 tầng hiện đại đẳng cấp - Chủ đầu tư: Anh Hùng, Hà Nội
1. Phối cảnh 3D mặt tiền
- Chủ đầu tư: Anh Hùng
- Địa điểm xây dựng: Hà Nội
- Công năng sử dụng:
Tầng 1: Khách + Bếp + 1 Phòng ngủ + WC
Tầng 2: 1 Phòng ngủ khép kín + 2 Phòng ngủ thường + WC
Tầng 3: Phòng thờ + Phòng làm việc + WC

Ngôi nhà mang phong cách hiện đại, trẻ trung, thể hiện rõ gu thẩm mỹ tinh tế và mong muốn về một không gian sống thoáng sáng – tiện nghi – sang trọng giữa lòng phố thị.
Mặt tiền ngôi nhà được xử lý khéo léo với hệ khối vuông vức kết hợp đường cong mềm ở tầng trên, tạo nên cảm giác vừa vững chãi vừa nhẹ nhàng.
Các mảng kính lớn cùng ban công cây xanh giúp mở rộng tầm nhìn, đón sáng tự nhiên, mang lại năng lượng tích cực mỗi ngày.
Tông màu trắng chủ đạo kết hợp xám và nâu gỗ tạo nên vẻ đẹp sang trọng, thanh thoát nhưng không đơn điệu – đặc trưng của phong cách kiến trúc hiện đại mà Việt Home luôn hướng đến.
2. Công năng sử dụng
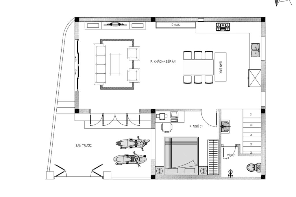
2.1. Tầng 1
Khách + Bếp + 1 Phòng ngủ + WC

.png?988)
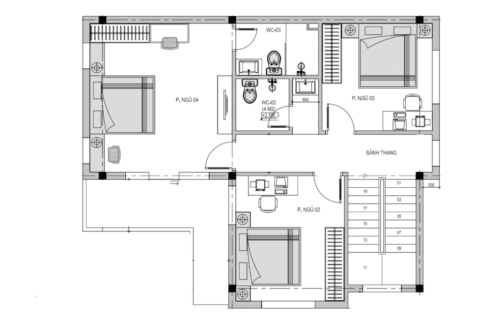
2.2. Tầng 2
1 Phòng ngủ khép kín + 2 Phòng ngủ thường + WC
.png?833)
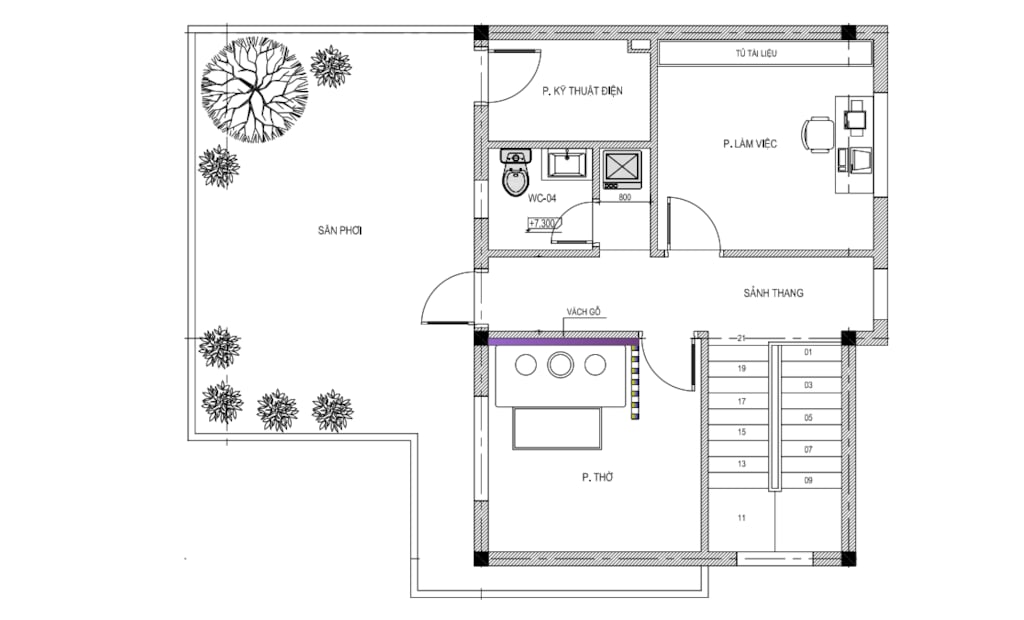
2.3. Tầng 3
Phòng thờ + Phòng làm việc + WC
.png?167)
