Chiêm ngưỡng biệt thự 2 tầng mái nhật đỉnh cao được xây dựng tại Nam Định- Chủ đầu tư: Anh Thành
1. Phối cảnh 3D
- Chủ đầu tư: Anh Thành
- Địa điểm xây dựng: Nam Định
- Tên công trình: Nhà 2 tầng mái Nhật
- Công năng sử dụng:
+ Tầng 1: Phòng khách + Bếp ăn+ Phòng ngủ + 1 WC
+ Tầng 2: Phòng thờ + 2 Phòng ngủ + 1 WC + Sân phơi

Ngôi nhà gây ấn tượng với kiến trúc bề thế, sang trọng, thể hiện gu thẩm mỹ tinh tế của gia chủ. Công trình được đánh giá cao nhờ giá trị thẩm mỹ hoàn hảo và cách bố trí công năng khoa học, đáp ứng tối đa nhu cầu sinh hoạt. Ngôi nhà của gia đình anh Thành chinh phục người nhìn bằng sự tinh tế trong cách phối màu ngoại thất, tạo nên một tổng thể hài hòa và cuốn hút. Sự kết hợp giữa gam màu trắng, xám chủ đạo cùng những điểm nhấn tương phản từ cửa nhôm kính đen sang trọng và gam ghi xám hiện đại đã mang đến vẻ đẹp thời thượng, khoẻ khoắn cho công trình.

Không gian ngoại thất của mẫu biệt thự được thiết kế theo khối hình vuông vắn không quá cầu kỳ với các đường nét, chi tiết rất đơn giản thoáng mát. Thiết kế biệt thự hiện đại 2 tầng đẹp mang trong mình sự khỏe khoắn, phóng khoáng được thể hiện rõ ràng qua từng hình khối, mảng miếng, đường nét thiết kế. Những họa tiết trang trí đều hướng tới sự đơn giản, ưu tiên sử dụng những gam màu trung tính đang rất thịnh hành trong cuộc sống hiện đại ngày nay. Ngôi nhà sử dụng màu chủ đạo trắng và xanh tạo ra một không gian sáng sủa, sạch sẽ và rộng rãi. Màu trắng cũng giúp làm nổi bật các chi tiết khác trong ngôi nhà và dễ dàng kết hợp với nhiều vật liệu khác nhau như gỗ, kính, đá.

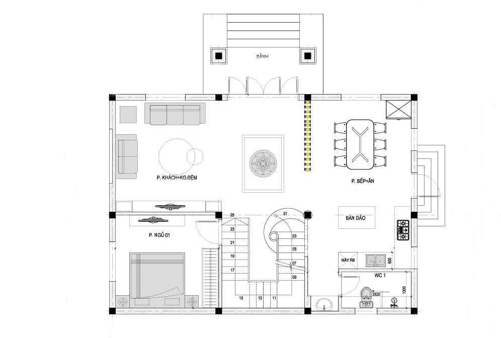
2. Hình ảnh bố trí công năng
2.1. Tầng 1
Phòng khách + Bếp ăn+ Phòng ngủ + 1 WC
.png?640)

2.2. Tầng 2
Phòng thờ + 2 Phòng ngủ + 1 WC + Sân phơi
.png?189)
Nếu bạn đang cần một đơn vị thiết kế và xây dựng lên ngôi nhà mơ ước, hãy liên hệ ngay với Việt Home nhé!
