Cận cảnh mẫu chung cư mini 6 tầng tân cổ điển độc đáo , tiện nghi của chủ đầu tư anh Tiến tại Thanh Xuân Hà Nội
Chung cư mini là một mô hình nhà ở mang tính chất tiết kiệm diện tích, thường được thiết kế cho các hộ gia đình nhỏ, sinh viên hoặc những người có thu nhập trung bình, sống ở các thành phố lớn nơi giá đất và giá nhà cao. Mô hình này đáp ứng nhu cầu về không gian sống với chi phí hợp lý, nhưng vẫn đảm bảo tính tiện nghi. Vì thế nhiều người lựa chọn chung cư mini 10, 20,…, 50m2 để phù hợp với tài chính của gia đình và tiết kiệm được một phần chi phí. Nắm được nhu cầu đó, anh Tiến đã đầu tư xây dựng một tòa chung cư mini để đầu tư và kinh doanh cho thuê kết hợp nhà ở.
1. Phối cảnh 3D mặt tiền
- Chủ đầu tư: Anh Tiến
- Địa điểm xây dựng: Hà Nội
- Tên công trình: Chung cư mini
- Diện tích: 3,5x16,1m
- Công năng sử dụng:
+ Tầng 1: Nhà để xe + thang máy, + 1 căn hộ khép kín
+ Tầng 2, 3, 4, 5, 6: 3 căn hộ khép kín

Thiết kế chung cư mini phong cách tân cổ với những đường khối vuông vắn, cách điệu xen kẽ nhau, kết hợp ban công với những ô cửa kính đón nắng, đón ánh sáng cho ngôi nhà. Dáng đứng hiên ngang đầy lịch lãm và cuốn hút người xem. Đây cũng là một trong những ấn tượng đẹp để thu hút người thuê phòng. Do mật độ giao thông ra vào là cao hơn so với bình thường. Nên KTS thiết kế 2 hệ cửa cuốn . Bao quanh 2 hệ cửa này là các mảng tường ốp đá granite màu nâu vân vàng vô cùng sang trọng.Các tầng phía trên với gam màu trắng chủ đạo đại diện cho nét đẹp thanh thoát, nhã nhẵn và đầy quyến rũ. Bắt đầu từ tầng 2 sẽ được đua rộng ra phía trước 0.8m theo đúng quy định.

Tầng 1 được thiết kế nhà để xe rộng rãi tiện nghi để cả ô tô và xe máy, bên cạnh đó kết hợp làm 1 căn hộ khép kín cho thuê
Tầng 2,3,4,5 thiết kế mỗi tầng làm 3 căn hộ khép kín cho thuê phù hợp với hộ gia đình có kinh tế thấp.
Hệ thống thang máy được xây dựng đáp ứng nhu cầu sử dụng của gia đình và giúp tăng giá trị phòng cho thuê. Chung cư được phối màu sơn xanh ngọc, trắng, vàng làm ngôi nhà trở nên độc đáo, phá cách.

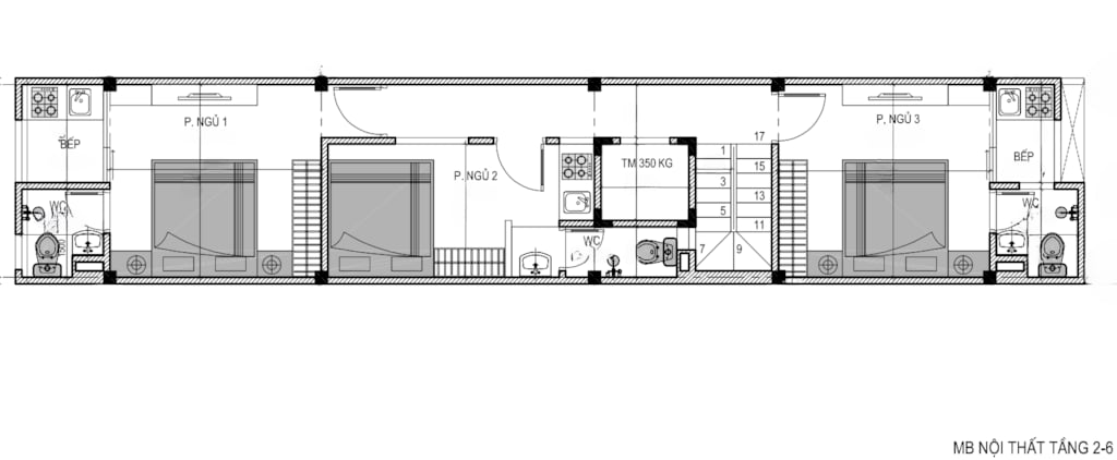
2. MẶT BẰNG CÔNG NĂNG
2.1 Tầng 1
+ Tầng 1: Nhà để xe + thang máy, + 1 căn hộ khép kín

2.2 Tầng 2-6
+ Tầng 2, 3, 4, 5, 6: 3 căn hộ khép kín

