Cải tạo mẫu nhà phố 5 tầng 1 tum của chủ đầu tư anh Hùng tại Tây Hồ , Hà Nội - Đẹp hiện đại và tối đa không gian sử dụng
1. Phối cảnh 3D mặt tiền
Chủ đầu tư: Anh Hùng
Địa điểm xây dựng: Tây Hồ, Hà Nội
Công năng sử dụng:
+ Tầng 1: Để xe + Phòng kho
+ Tầng 2: Phòng làm việc + Phòng ngủ + WC
+ Tầng 3: Phòng làm việc + Phòng ngủ + WC
+ Tầng 4: Phòng làm việc + Phòng ngủ + WC
+ Tầng 5: Phòng khách + Bếp ăn + WC
+ Tầng tum: Phòng thờ + Phòng giặt + Sân phơi

Mặt tiền căn nhà cải tạo 5 tầng 1 tum nổi bật với phong cách hiện đại tối giản nhưng vô cùng tinh tế, tạo cảm giác thanh thoát và sang trọng ngay từ cái nhìn đầu tiên. Hệ cửa kính lớn chạy xuyên suốt các tầng vừa mở rộng tầm nhìn, vừa mang lại ánh sáng tự nhiên dồi dào, giúp công trình trở nên sáng bừng và có chiều sâu. Những đường nét kiến trúc vuông vắn, gọn gàng cùng các gờ chỉ nhẹ dưới ban công tạo điểm nhấn tinh tế, khiến mặt đứng ngôi nhà trở nên hài hòa và cuốn hút. Tông màu trắng – xám xanh được phối hợp khéo léo, mang lại cảm giác hiện đại, nhẹ nhàng và sạch sẽ, đặc biệt phù hợp với các công trình cải tạo trong khu phố đông đúc. Phần tum với mái lam sắt kết hợp trần gỗ là điểm nhấn ấn tượng nhất của toàn bộ kiến trúc, vừa che nắng hiệu quả vừa tạo nên một không gian thư giãn thoáng đãng, đẹp mắt.
Bên trong, căn nhà được bố trí tiện nghi phù hợp với nhu cầu sử dụng, tối đa không gian kết hợp ánh sáng tự nhiên chan hòa và ban công thông thoáng; tầng tum trở thành nơi thư giãn lý tưởng, có thể bố trí bàn trà, cây xanh hoặc sử dụng làm không gian sinh hoạt chung. Tổng thể công trình mang đến sự tiện nghi vượt trội, đáp ứng đa dạng nhu cầu sử dụng—từ ở, làm việc đến cho thuê—đồng thời giữ được vẻ đẹp trang nhã, hiện đại và rất phù hợp với đời sống đô thị ngày nay.

2. Hình ảnh bố trí công năng
2.1. Tầng 1
+ Tầng 1: Để xe + Phòng kho
.png?231)
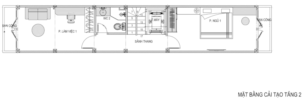
2.2. Tầng 2
+ Tầng 2: Phòng làm việc + Phòng ngủ + WC
.png?898)
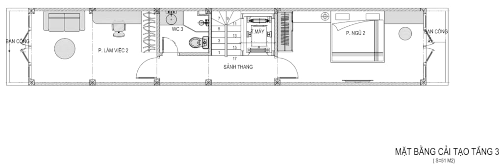
2.3. Tầng 3
+ Tầng 3: Phòng làm việc + Phòng ngủ + WC
.png?378)
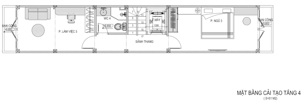
2.4. Tầng 4
+ Tầng 4: Phòng làm việc + Phòng ngủ + WC
.png?789)
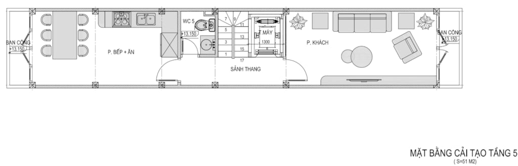
2.5. Tầng 5
+ Tầng 5: Phòng khách + Bếp ăn + WC
.png?587)
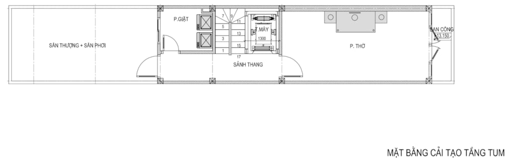
2.6. Tầng tum
+ Tầng tum: Phòng thờ + Phòng giặt + Sân phơi
.png?708)
