Biệt Thự Vườn 1 Tầng Mái Nhật: Đẹp Thanh Lịch - Chủ đầu tư: Anh Cường, Hà Nội
1. Phối cảnh 3D mặt tiền
- Chủ đầu tư: Anh Cường
- Địa điểm xây dựng: Hà Nội
- Tên công trình: Biệt thự vườn mái nhật
- Công năng sử dụng:
Phòng khách + Bếp + 2 Phòng ngủ master + 1 Phòng ngủ thường + 1 WC

Điểm ấn tượng đầu tiên của mẫu nhà là mặt tiền rộng rãi, thiết kế cân đối và hài hòa. Hệ cột vuông chắc chắn kết hợp cùng những đường phào chỉ nhẹ nhàng tạo nên vẻ đẹp nhẹ nhàng thanh lịch. Gam màu trắng chủ đạo giúp tổng thể công trình trở nên nổi bật, đồng thời tạo cảm giác sang trọng và sạch sẽ.
Phần sảnh chính được thiết kế cao ráo với bậc tam cấp rộng, tạo nên sự bề thế cho ngôi nhà. Cửa chính sử dụng gỗ tự nhiên cao cấp, kết hợp hoa văn trang trí tinh tế giúp tăng thêm giá trị thẩm mỹ cho công trình. Hệ cửa sổ kính khung nhôm hiện đại không chỉ mang lại vẻ đẹp trẻ trung mà còn giúp không gian bên trong luôn thông thoáng và đón được nhiều ánh sáng tự nhiên.
.jpg?173)
Một trong những điểm nổi bật của công trình là hệ mái Nhật sang trọng với độ dốc vừa phải. Thiết kế mái giật cấp giúp tổng thể ngôi nhà trở nên cao ráo và thanh thoát hơn.
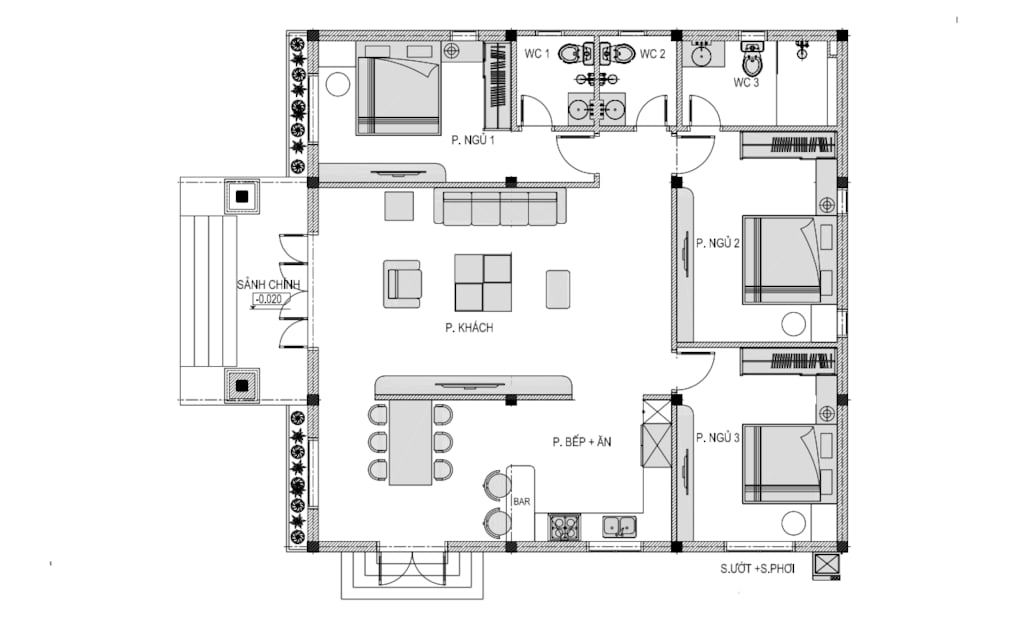
2. Hình ảnh bố trí công năng
Phòng khách + Bếp + 2 Phòng ngủ master + 1 Phòng ngủ thường + 1 WC
.png?431)
