Biệt thự tân cổ điển kết hợp văn phòng đẳng cấp - Chủ đầu tư: Anh Chuyền, Bắc Ninh
1. Phối cảnh 3D mặt tiền
- Chủ đầu tư: Anh Chuyền
- Địa điểm xây dựng: Bắc Ninh
+ Tầng 1: Kho + Khu vực để xe
+ Tầng 2: Khu vực kho
+ Tầng 3: Khu văn phòng + Phòng khách + Phòng karaoke + Phòng thể dục + WC
+ Tầng 4: Phòng khách + Phòng bếp ăn + 2 Phòng ngủ khép kín + 1 Phòng ngủ thường + WC
+ Tầng 5: Phòng thờ + Khu vực BBQ + 1 Phòng ngủ + Ban công
Ngôi biệt thự hiện đại gây ấn tượng ngay từ ánh nhìn đầu tiên bởi thiết kế khỏe khoắn và đầy phá cách.

Với mong muốn mang đến một không gian sống hoà hợp với thiên nhiên, công trình sử dụng tối đa chất liệu kính cường lực nhằm tạo cảm giác thông thoáng, đầy hiện đại. Khi nói về vật liệu thiết kế nổi bật trong các không gian hiện đại, chắc chắn không thể không nhắc đến kính cường lực. Đây chính là vật liệu phổ biến thường thấy và đóng vai trò quan trọng trong nhiều kiểu thiết kế. Với kính cường lực, ngôi nhà sẽ trở nên thông thoáng, hiện đại và tối đa hóa được ánh sáng tự nhiên. Đồng thời chi tiết này góp phần làm nên hiệu ứng giúp mở rộng không gian, một cách “ăn gian” diện tích hiệu quả.

2. Hình ảnh bố trí công năng
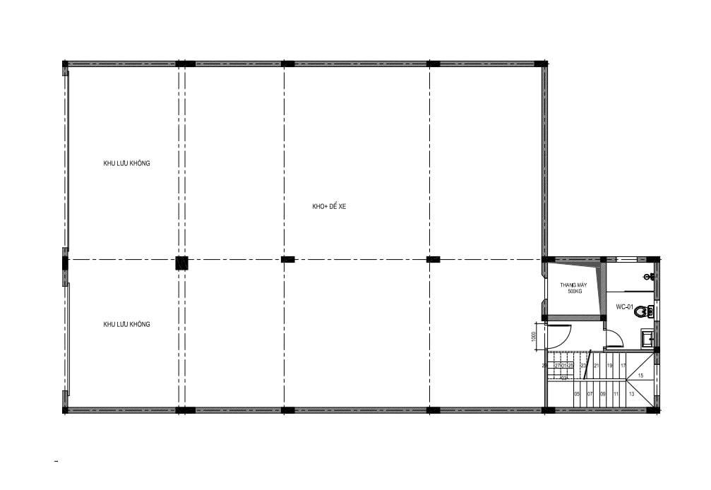
2.1. Tầng 1
Kho + Khu vực để xe
.png?9)
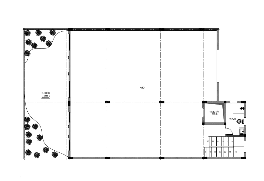
2.2. Tầng 2
Khu vực kho
.png?719)
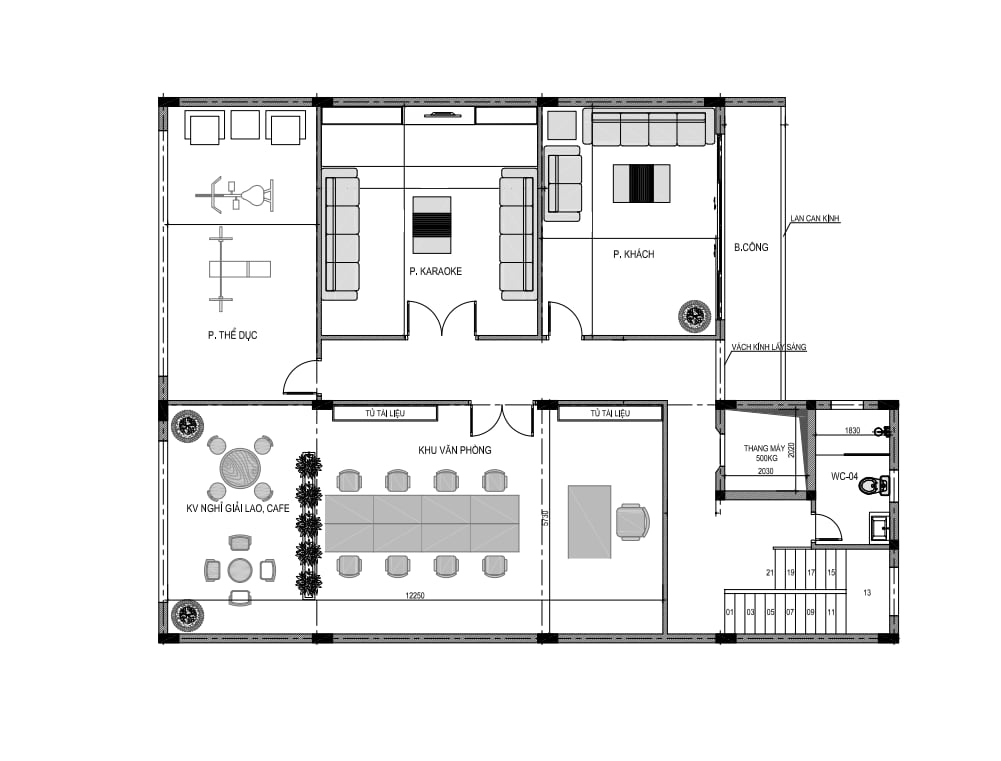
2.3. Tầng 3
Khu văn phòng + Phòng khách + Phòng karaoke + Phòng thể dục + WC
.png?304)
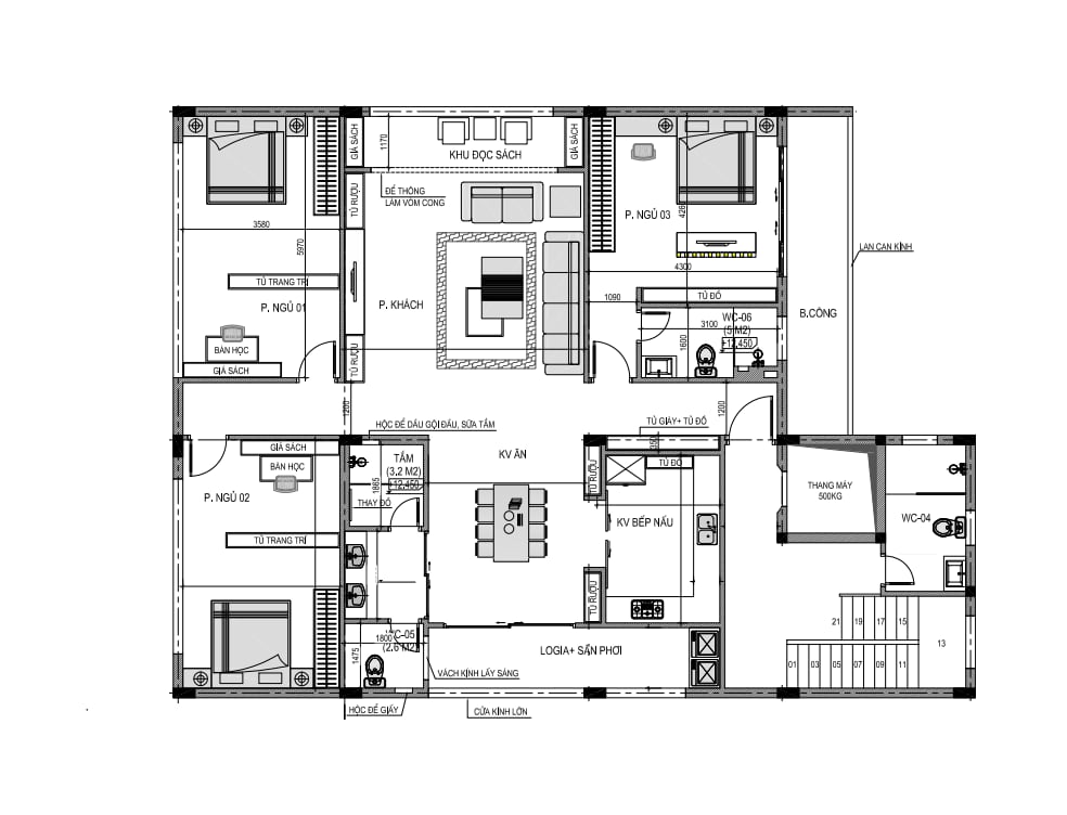
2.4. Tầng 4
Phòng khách + Phòng bếp ăn + 2 Phòng ngủ khép kín + 1 Phòng ngủ thường + WC
.png?385)
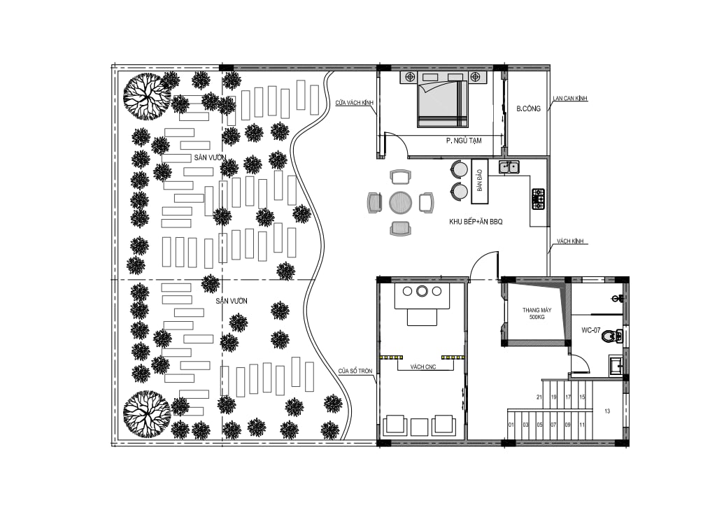
2.5. Tầng 5
Phòng thờ + Khu vực BBQ + 1 Phòng ngủ + Ban công

