Biệt thự 2 tầng mái thái đẹp tại Thái Nguyên, Chủ đầu tư: Anh Quỳnh
1. Phối cảnh 3D mặt tiền
- Chủ đầu tư: Anh Quỳnh
- Địa điểm xây dựng: Thái Nguyên
- Tên công trình: Biệt thự 2 tầng mái Thái
- Công năng sử dụng:
+ Tầng 1: Phòng khách + Phòng bếp + 1 Phòng ngủ chờ + 1 WC
+ Tầng 2: Phòng thờ + 1 Phòng ngủ master + 2 Phòng ngủ thường + 1 WC

Mẫu biệt thự 2 tầng mái thái đượcKTS thiết kế theo phong cách tân cổ điển nhẹ nhàng thanh thoát với các chi tiết hình vái vòm, hệ thống cột trụ. Đặc biệt, ở khu vực sảnh chính và hệ thống cửa sổ được thiết kế cách điệu hình vòm đắp nổi nhẹ nhàng, các cặp trụ tròn kiên cố được thiết kế hài hòa ở khu vực sảnh ban công tầng 2 nhìn nhẹ nhàng và quyến rũ, các đường phào chỉ được chạy đều nhau làm nên sự tinh tế và cuốn hút cho ngoại thất mẫu biệt thự.

Hệ thống cửa sổ kính khung gỗ được bố trí dày đặc ở các vị trí giúp tận dụng tối đa không gian sống để lấy ánh sáng và gió tự nhiên từ ngoài vào. Hệ thống cửa chính được sử dụng chính bằng gỗ được tạo điểm nhấn bằng những ô kính nhỏ, Hệ thống lam trang trí ban công được sử dụng chất liệu nhôm đúc hình bán nguyệt điệu đà và uốn lượn đó là xu hướng sử dụng trong những mẫu thiết kế biệt thự tân cổ điển.

2. Bố trí công năng
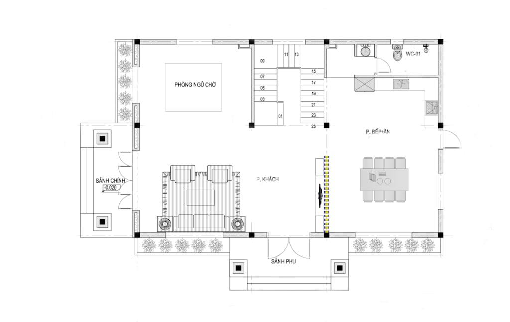
2.1. Bố trí công năng tầng 1
Phòng khách + Phòng bếp + 1 Phòng ngủ chờ + 1 WC

.png?335)
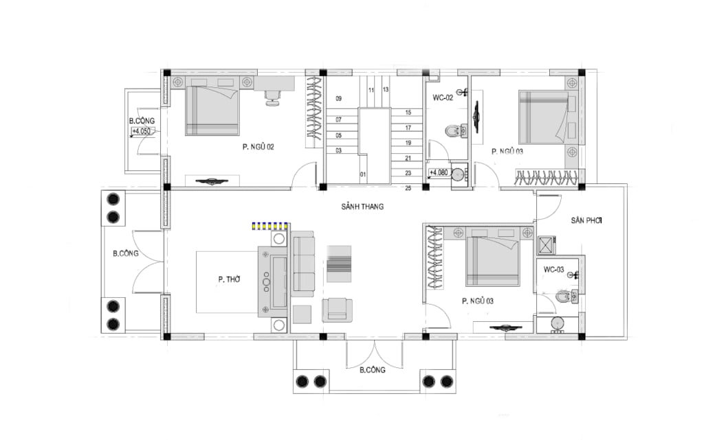
2.2. Bố trí công năng tầng 2
Phòng thờ + 1 Phòng ngủ master + 2 Phòng ngủ thường + 1 WC
.png?444)
3. Hình ảnh thi công
Ảnh thi công móng


Mỗi căn nhà khi xây dựng, bố cục sắp xếp các phòng, hướng phục thuộc vào tuổi tác các thành viên trong gia đình cũng như hướng đất. Việc bố trí công năng phù hợp vô cùng quan trọng khi sinh hoạt và trong phong thủy làm ăn, sức khỏe hay hạnh phúc của gia chủ. Bởi vậy, nếu bạn đang có dự định xây nhà, đừng làm theo bản vẽ có sẵn trên mạng mà hãy liên hệ với Việt Home để được tư vấn bố trí và phong thủy sao cho phù hợp nhất.
